Vuokrataan tuotantotilat, varastotilat, työtilat - Kuopio
Hakekatu 2, 70800 Kuopio #10827206
Vuokrataan moneen käyttöön taipuvaa hallitilaa Kuopiossa Kylmämäen teollisuusalueella. Tila soveltuu esimerkiksi harrasteporukoille ajoneuvojen laittoon. Tästä sijainnista pääset moottoritielle minuuteissa, ja myös keskustaan alle vartissa. Hallitila on avara ja siistissä kunnossa.
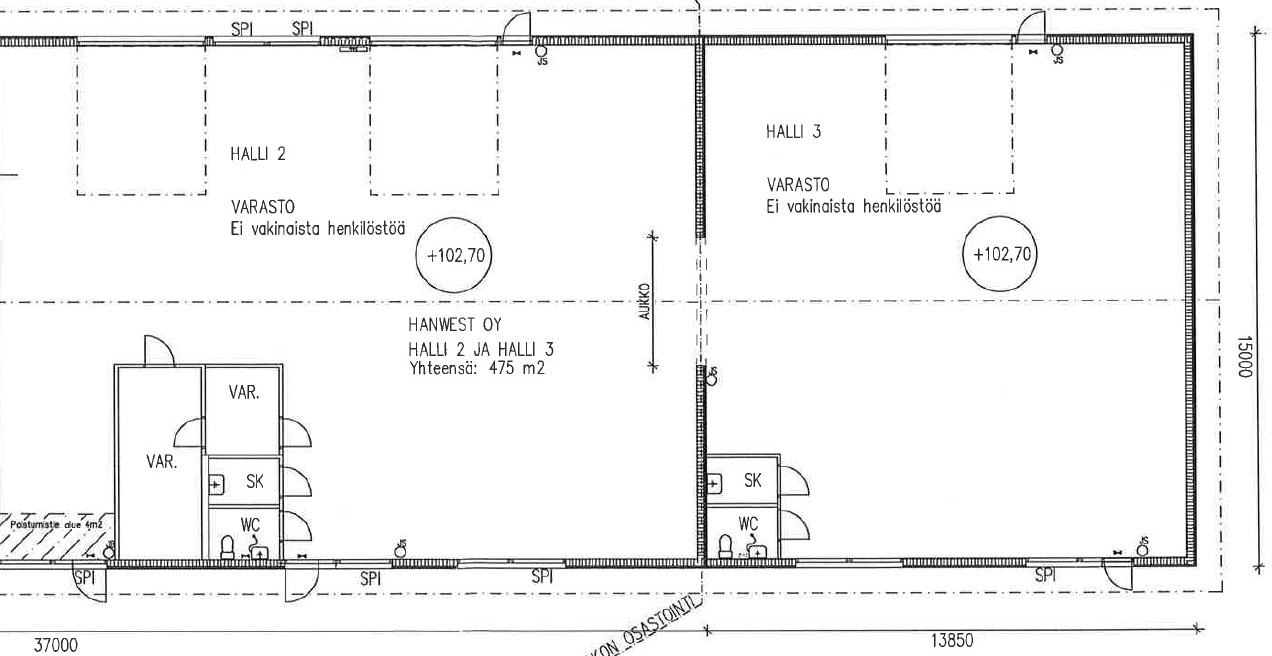
Hallin vapaa korkeus noin 3,1 metriä, nosto-ovi 3,5 x 3,5 m, kaukolämpö ja öljynerotuskaivo. Tilassa myös oma wc ja siivouskomero.
Pohjakuvassa tilan merkintä on halli 3.
Osoite
Hakekatu 2, 70800 Kuopio
Tilatyyppi
Tuotantotilaa
203 m2
Varastotilaa
203 m2
Työtilaa
203 m2
Yhteensä
203 m2
Pohjapiirros
Vuokra
Kysy!
Sijainti
Sijainti Kylmämäessä Hakekadun alkupäässä. Kuopion keskustaan autolla vain reilun 10 minuutin ajoaika. VT5:n läheisyys mahdollistaa sujuvan liikennöinnin niin etelän kuin pohjoisen suuntaan. Moottoritielle pääsee vain muutamassa minuutissa, sillä liittymät molempiin suuntiin ovat noin 1,5 kilometrin etäisyydellä.
Ympäristö
Kylmämäen teollisuusalue, alueella mm. kuljetusalan, autoalan ja rakennusalan yrityksiä.
Pysäköinti
Pistokepaikkoja hallin edessä.
Palvelut
Lähistöllä Pitkälahdessa mm. ABC, S-market, Prisma Rauta ja Wurth. Pienessä Neulamäessä myös lounasravintola.
Kulkuyhteydet
Helposti saavutettavissa autolla. Lähimmälle bussipysäkille noin vartin kävely.
Vapautuu
Heti
Katutasossa
Ota yhteyttä
Suomen Toimitila-asiantuntijat Oy
Vuorikatu 26 A, 70100 KUOPIO
Näytä puhelinnumero
044 3636 198
Tanja Nylander
Pyydä lisätietoa
