Vuokrataan tuotantotilat - Lohja
Puistokatu 16, 08150 Lohja #10827204
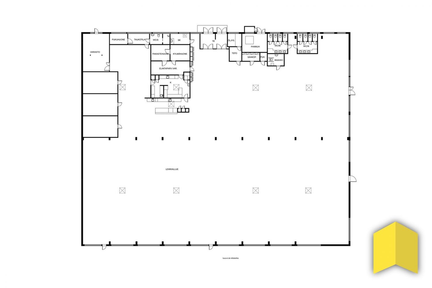
Vuokrataan vuonna 2016 monin tavoin modernisoitu reilu 1900 neliöinen halli hyvällä sijainnilla Lohjalla.
Kiinteistö soveltuu esimerkiksi sisäliikuntakäyttöön, tukkukaupan toimipaikaksi tai logistiikkatoimijan varastoksi. Tilojen jakamisesta kahteen osaan voidaan neuvotella.
Viimeisimpänä vuokralaisena oli lasten sisäleikkipuisto, jota ennen rakennukseen tehtiin mittavat muutostyöt. Osa hallin katosta korotettiin ja ilmanvaihtojärjestelmä uusittiin. Tilassa on modernit paloilmoitin-, turvavalo- ja savunpoistojärjestelmät.
Hyväkuntoisista tiloista löytyy valmiina ammattimainen keittiö, asiakasvessat, kolme toimisto-/neuvotteluhuonetta sekä henkilöstön sosiaalitilat. Useita henkilösisäänkäyntejä sekä nosto-ovellinen varasto. Nosto-ovia voidaan rakentaa lisää. Piha on asfaltoitu.
Öljykäyttöinen lämmitysjärjestelmä sekä lisäksi useita ilmalämpöpumppuja. Lämmitys voidaan sisällyttää vuokraan.
