Vuokrataan liiketilat - Lohja
Kauppakatu 14, 08100 Lohja #10827189
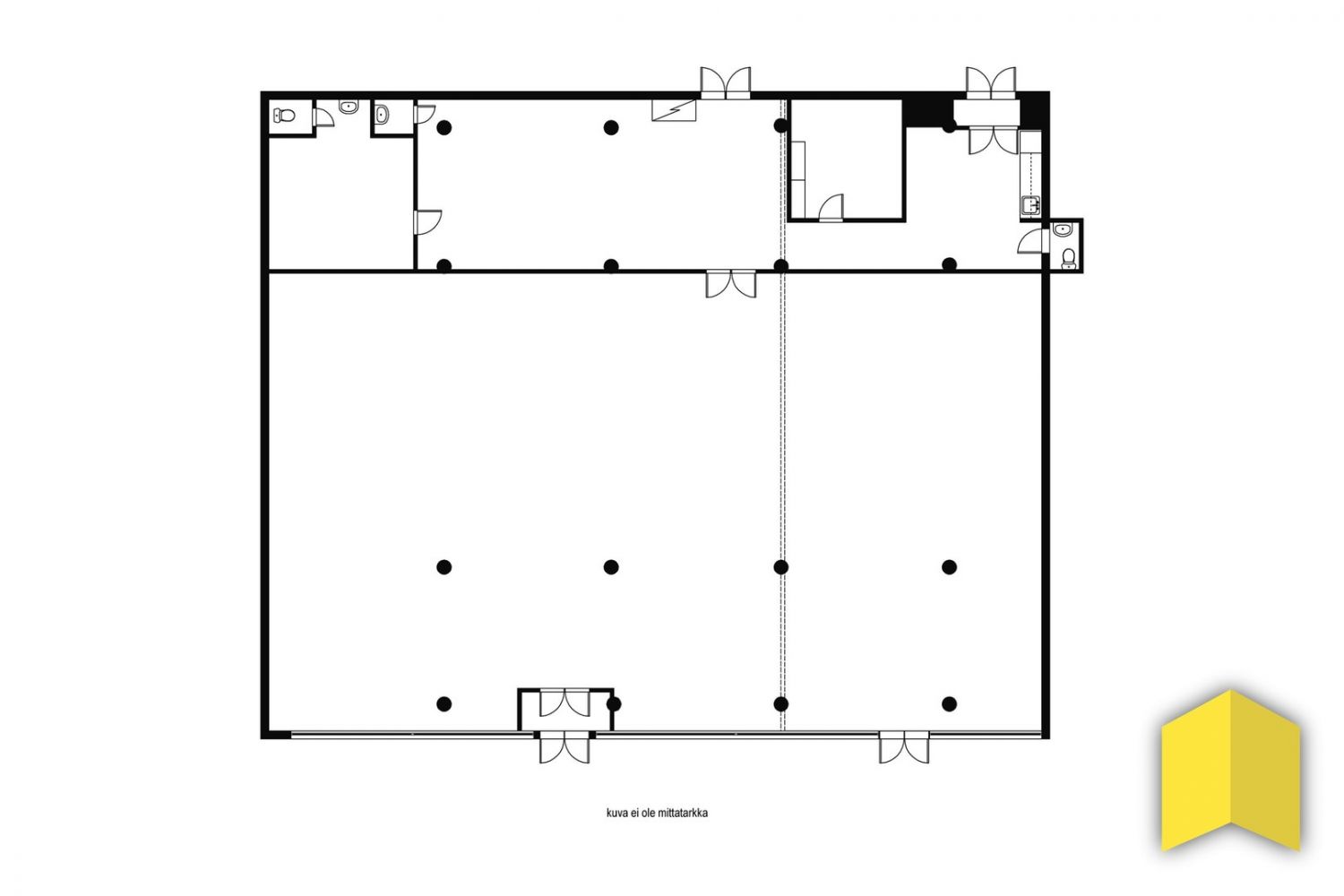
Lohjan keskustan keskeisimmältä sijainnilta Kauppakadulta vapautuu 1.4. vuokrattavaksi noin 428 neliöinen katutason hyväkuntoinen liikehuoneisto. Erittäin hyvä näkyvyys ja saavutettavuus.
Liiketila soveltuu myymäläksi, mutta mahdollisuus muokata myös ravintolaksi. Tila on jaettavissa kahdeksi erilliseksi liikehuoneistoksi (278m2 / 150m2).
Kiertovesilämmitys joka sisältyy vuokraan, sekä lisäksi ilmalämpöpumppu. Vuokralainen tekee oman sähkösopimuksen. Vesimaksu 12 € / kk / vakituinen työntekijä.
Vuokrasta ja vakuudesta neuvotellaan.
Osoite
Kauppakatu 14, 08100 Lohja
Tilatyyppi
Liiketilaa
428 m2
Vapautuu
01.04.2025
Kerros
1
Ota yhteyttä
Pyydä lisätietoa
