Vuokrataan toimistotilat - Espoo
Ahertajantie 6, Tapiola, 02100 Espoo #10827050
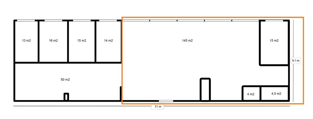
Vuokrataan monikäyttöinen työtila Tapiolasta. Tila soveltuu hyvin varastoksi ja toimistoksi. Valoisa ja avara tila toimii hyvin myös näyttelytilana. Tilan huonekorkeus on noin 2,9 metriä.
Tilassa on avotoimistoa ja yksi huone. WC-tilat ja suihku löytyvät kerroksen käytävältä. Tilaan voidaan tarvittaessa tehdä keittiö. Kiinteistön lastauslaiturilta on sujuva tavarahissiyhteys 2. kerroksen tilaan. Tavarahissin koko 2,7 x 2 metriä ja lastauslaiturilla on hyvin tilaa lastaukseen.
Tila vapautuu sopimuksen mukaan.
Lisätietoja soita 020 730 4530 tai info@repoint.fi. Palvelumme on tilanhakijalle ilmainen.
Repoint Toimitilat Oy
Itälahdenkatu 22 B, 00210 Helsinki
Näytä puhelinnumero
020 730 4530
Lisätietoja soita Näytä puhelinnumero 020 730 4530 tai info@repoint.fi
https://repoint.fi/