Vuokrataan toimistotilat - Helsinki
Pitkänsillanranta 3, Hakaniemi, 00530 Helsinki #10827028
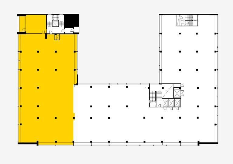
Vuokrataan Helsingin Hakaniemestä viidennen kerroksen 355 m² toimistotila.
Tilassa on avotoimistoa, työ- sekä neuvottelutiloja. Erillisessä ruokailutilassa keittiö. Ilmanvaihto on jäähdytetty.
Keskeisen sijaintinsa ansiosta kiinteistöön on helppo saapua ja kaikki Hakaniemen palvelut ovat lähettyvillä. Myös raitiovaunut kulkevat aivan kiinteistön kupeessa, ja Helsingin päärautatieasemalle on vain lyhyt kävelymatka.
Kiinteistön palveluina mm. kuntosali, neuvotteluhuoneita, pyöräparkki ja parkkitilaa lähettyvillä paljon.
Kysy rohkeasti lisätietoja ja sovitaan käynti kohteella jo tänään!
Hissi
Hausala Oy
Erkkilänkatu 11, 33100 Tampere
Näytä puhelinnumero
050 472 7077
Mika Savikko
Näytä puhelinnumero
050 472 7077
Mikko Ranta
Näytä puhelinnumero
050 360 6500
