Vuokrataan toimistotilat - Helsinki
Vuorikatu 20, Kaisaniemi, 00100 Helsinki #10826966
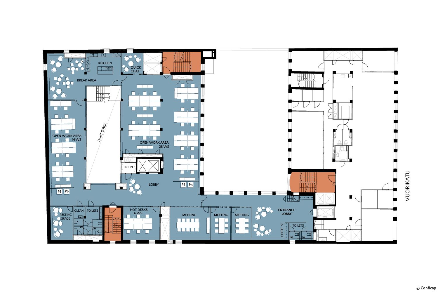
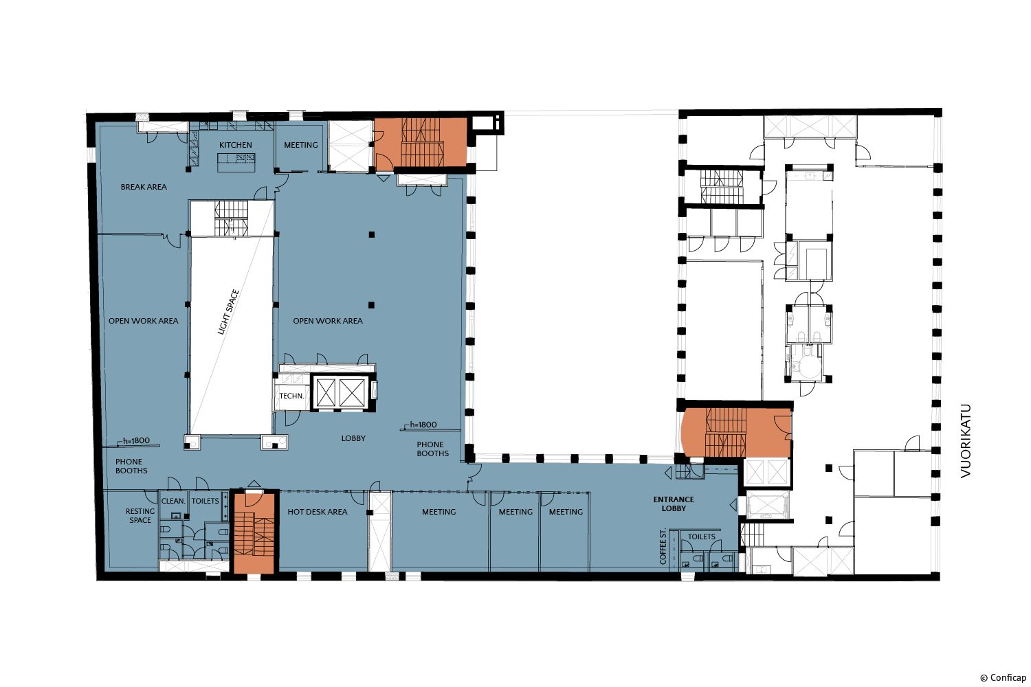
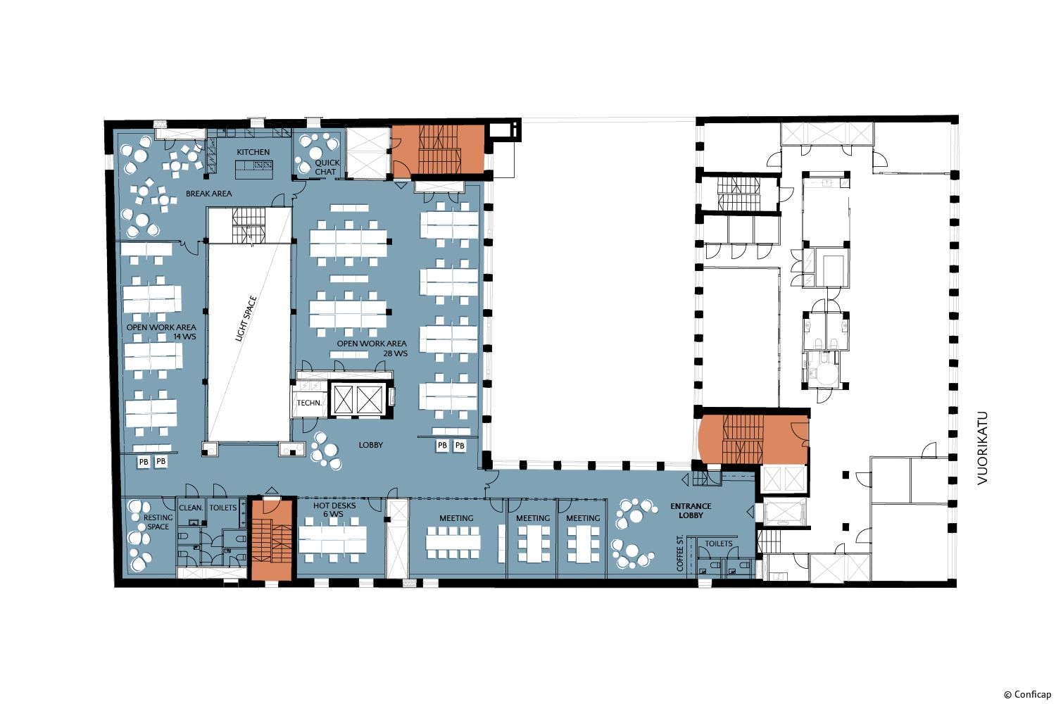
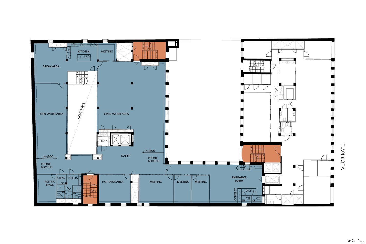
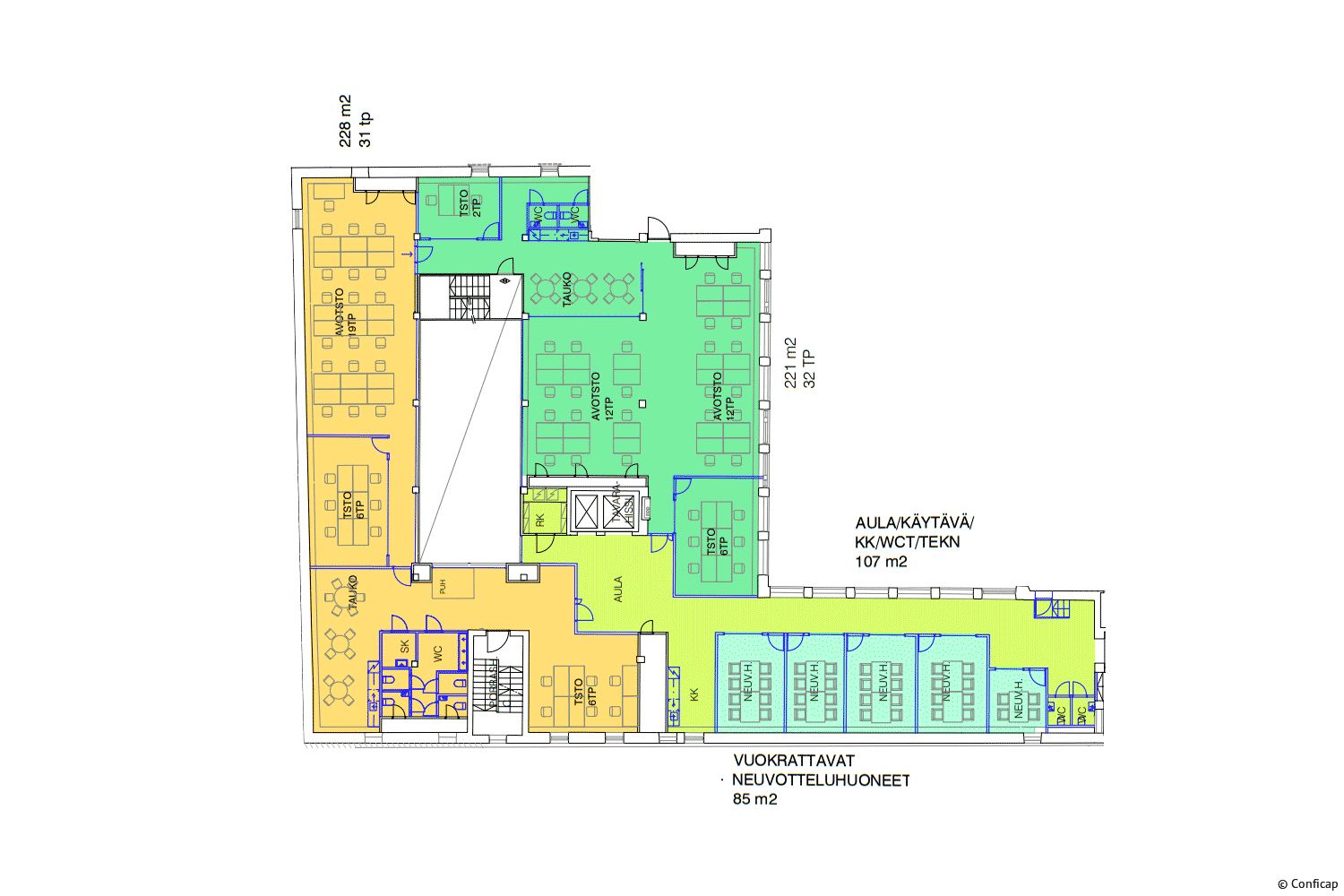
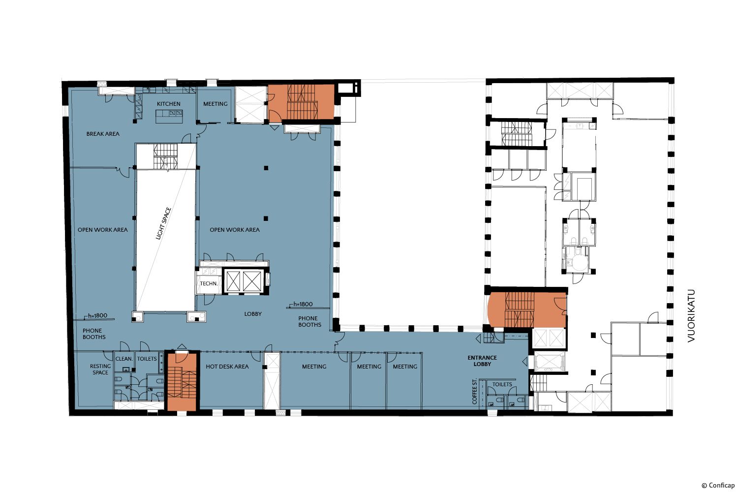
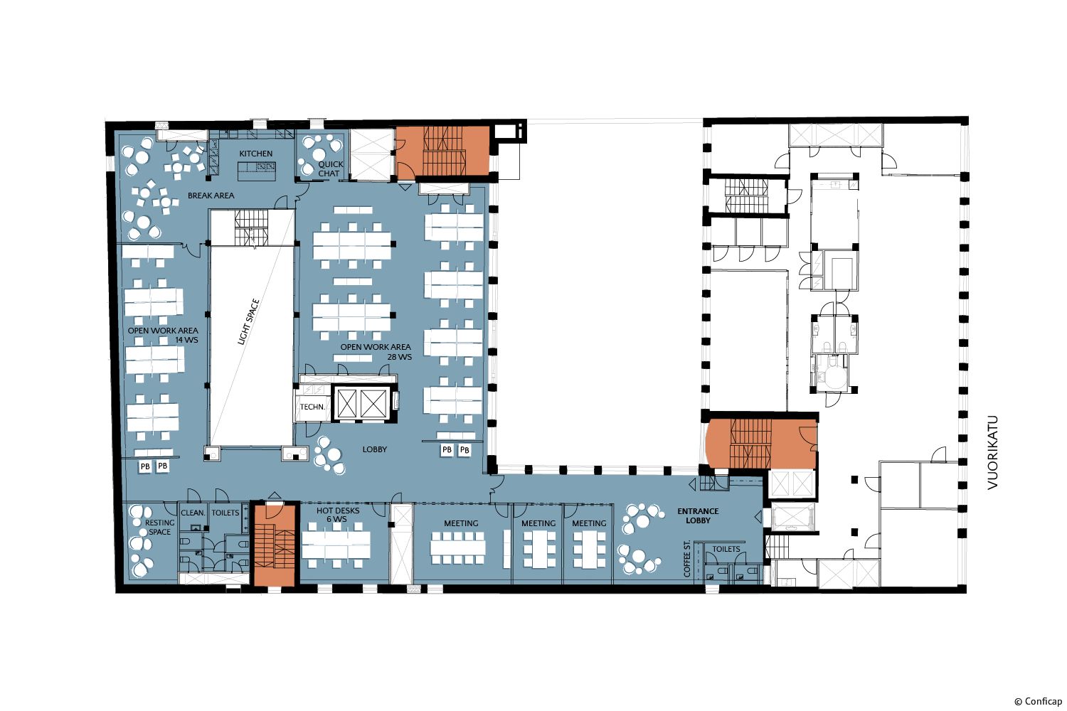
Vuokrattavana tulevan vuokralaisen tarpeiden mukaan remontoitava toimistotila. Tähän toimitilaan saa työpisteet n. 40-50 henkilölle ja lisäksi runsaasti ryhmätyö- ja neuvottelutiloja. Loistava sijainti lähellä keskustan palveluita. Yliopiston metroasema aivan vieressä.
Conficap Oy
Salomonkatu 17 A, 00100 Helsinki
Näytä puhelinnumero
010 400 6440
Visa Heiskanen
Näytä puhelinnumero
010 400 6464
Conficapin kiinteistöliiketoiminta koostuu kiinteistöomistuksista Suomen kasvukeskusten parhailla paikoilla sekä osuuksista yhteissijoituksissa ja kiinteistörahastoissa sekä kotimaassa että ulkomailla. Vuokrattavana on toimisto- ja logistiikkatilaa pääkaupunkiseudulla sekä muissa Suomen kasvavissa keskuksissa.
https://conficaptoimitilat.fi/