Vuokrataan liiketilat, varastotilat - Helsinki
Linnankoskenkatu 4, Taka-Töölö, 00250 Helsinki #10826887
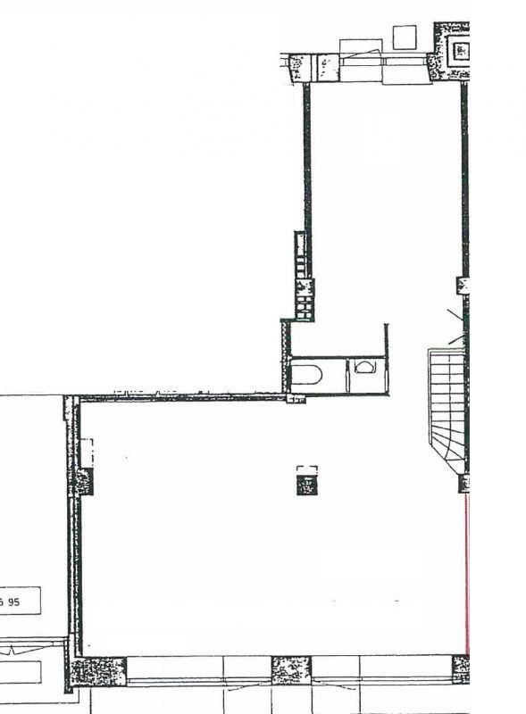
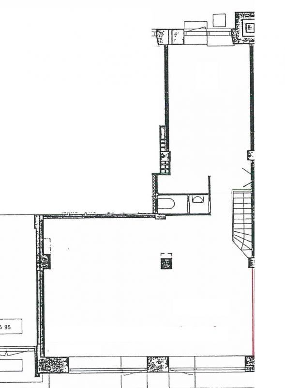
Vuokrataan Helsingin Töölöstä 131 m² liiketila. Tilasta katutasossa on n. 75 m² ja kellarissa n. 56 m².
Tila ei sovellu ravintola- tai kahvilatoimintaan!
Kysy rohkeasti lisätietoja ja sovitaan käynti kohteella jo tänään!
Osoite
Linnankoskenkatu 4, 00250 Helsinki
Tilatyyppi
Liiketilaa
131 m2
Varastotilaa
131 m2
Yhteensä
131 m2
Tila soveltuu
Studio/ateljé
Kiinteistö
Helsingin Linnankoskenkatu 4
Vapautuu
Kysy
Ota yhteyttä
Hausala Oy
Erkkilänkatu 11, 33100 Tampere
Näytä puhelinnumero
050 472 7077
Mika Savikko
Näytä puhelinnumero
050 472 7077
Mikko Ranta
Näytä puhelinnumero
050 360 6500
Pyydä lisätietoa
