Vuokrataan toimistotilat - Helsinki
Malmin Kauppatie 18, Malmi, 00700 Helsinki #10826867
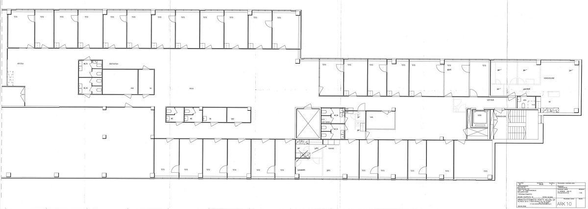
Vuokrataan toimistotilaa Malmintorin kauppakeskuksesta. Tila sijaitsee keskuksen 3. kerroksessa ja sinne on hissiyhteys kauppakeskuksesta ja parkkihallista. Tila koostuu pääosin huoneista sekä sosiaalitiloista ja on jaettavissa myös pienempiin kokonaisuuksiin.
Malmintorille on hyvät kulkuyhteydet niin julkisilla, kuin autollakin. Parkkihallista löytyy ilmaisia asiakaspaikkoja.
Malmintorilla toimivat mm. Terveystalo, Prisma, Lidl, Musti ja Mirri, Hesburger, Fysios ja Instru.
Lisätietoja soita 020 730 4530 tai info@repoint.fi. Palvelumme on tilanhakijalle ilmainen.
Repoint Toimitilat Oy
Itälahdenkatu 22 B, 00210 Helsinki
Näytä puhelinnumero
020 730 4530
Lisätietoja soita Näytä puhelinnumero 020 730 4530 tai info@repoint.fi
https://repoint.fi/