Vuokrataan liiketilat - Helsinki
Esterinportti 2, Pasila, 00240 Helsinki #10826742
Liiketilaa Helsingin Pasilassa.
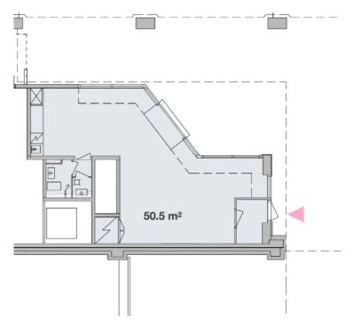
Tämä 50,5 m² liiketila on avonainen, ja se sijaitsee kiinteistön katutasossa. Tilassa on oma keittiöpiste ja wc-tila. Liike ei sovellu ravintola-, kahvila- tai kampaamotoimintaan. This premise is not suitable for a restaurant, cafeteria or a barber shop.
Esterinportti 2 on toimistokiinteistö, joka sijaitsee Länsi-Pasilassa vain kivenheiton päässä kauppakeskus Triplasta. Kiinteistössä on tasokas lounasravintola Factory. Julkiset liikenneyhteydet ovat erinomaiset.
Kysy lisää numerosta 044 723 4700 tai info@bref.fi. Palvelumme on tilanhakijoille ilmainen.
Hissi
Bureau Real Estate Finland Oy
Lars Sonckin kaari 16, 02600 Espoo
Näytä puhelinnumero
0447234700
Bureau Real Estate Finland Oy
https://www.bref.fi