Vuokrataan toimistotilat - Helsinki
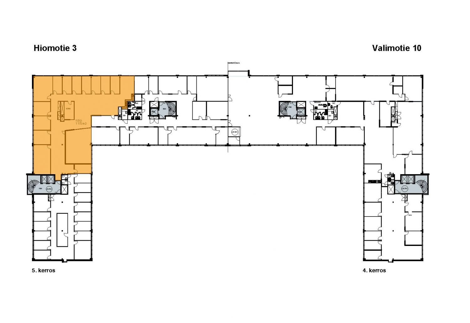
Hiomotie 3, Pitäjänmäki, 00380 Helsinki #10826707
Vuokrattavana 5. kerroksen tehokasta, laadukasta ja viihtyisää toimistotilaa.
Osoite
Hiomotie 3, 00380 Helsinki
Tilatyyppi
Toimistotilaa
440 m2
Kiinteistö
Vuokrattavana tehokasta, laadukasta ja viihtyisää toimistotilaa, joka voidaan räätälöidä vastaamaan yrityksen tarpeita. Toimistossa on avotila, työhuoneet, neuvottelutilat, oma keittiö ja wc-tilat.
Sijainti
Pitäjänmäki, Helsinki
Pysäköinti
Autohalli ja runsaasti pysäköintitilaa piha-alueella.
Palvelut
-Aulapalvelut
-Lounasravintola
-Vuokrattavat neuvottelutilat
-Sauna
-Kuntosali
-Lounasravintola
-Vuokrattavat neuvottelutilat
-Sauna
-Kuntosali
Kulkuyhteydet
-Bussi
-Lähijuna
-Oma auto
-Lähijuna
-Oma auto
Vapautuu
Heti
Kerros
5
Energiatehokkuusluokka
Ei lain edellyttämää energiatodistusta
Näkyvällä paikalla
Hissi
Ota yhteyttä
REALIUM OY LKV
Tammasaarenkatu 1, 00180 Helsinki
Vaihde:
Näytä puhelinnumero
010 326 346
Tuomo Mäkelä
tuomo.makela@realium.fi
p.
Näytä puhelinnumero
044 050 1158
Joel Keto
joel.keto@realium.fi
p.
Näytä puhelinnumero
045 317 0330
KAIKKI TILAVAIHTOEHDOT KERRALLA!
SOITA - MEILAA JA TILAA NÄYTTÖ!
Ilmainen palvelu tilanhakijoille.
Kartoitamme parhaat tilavaihtoehdot.
Kaikki kohteet eivät ole netissä.
Pyydä lisätietoa
