Vuokrataan toimistotilat - Helsinki
Pohjoinen Rautatiekatu 25, Kamppi, 00100 Helsinki #10826681
Moderni toimistokiinteistö keskeisellä paikalla Helsingin ydinkeskustassa
Osoite
Pohjoinen Rautatiekatu 25, 00100 Helsinki
Tilatyyppi
Toimistotilaa
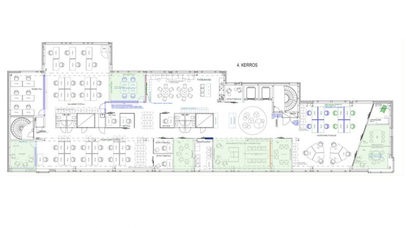
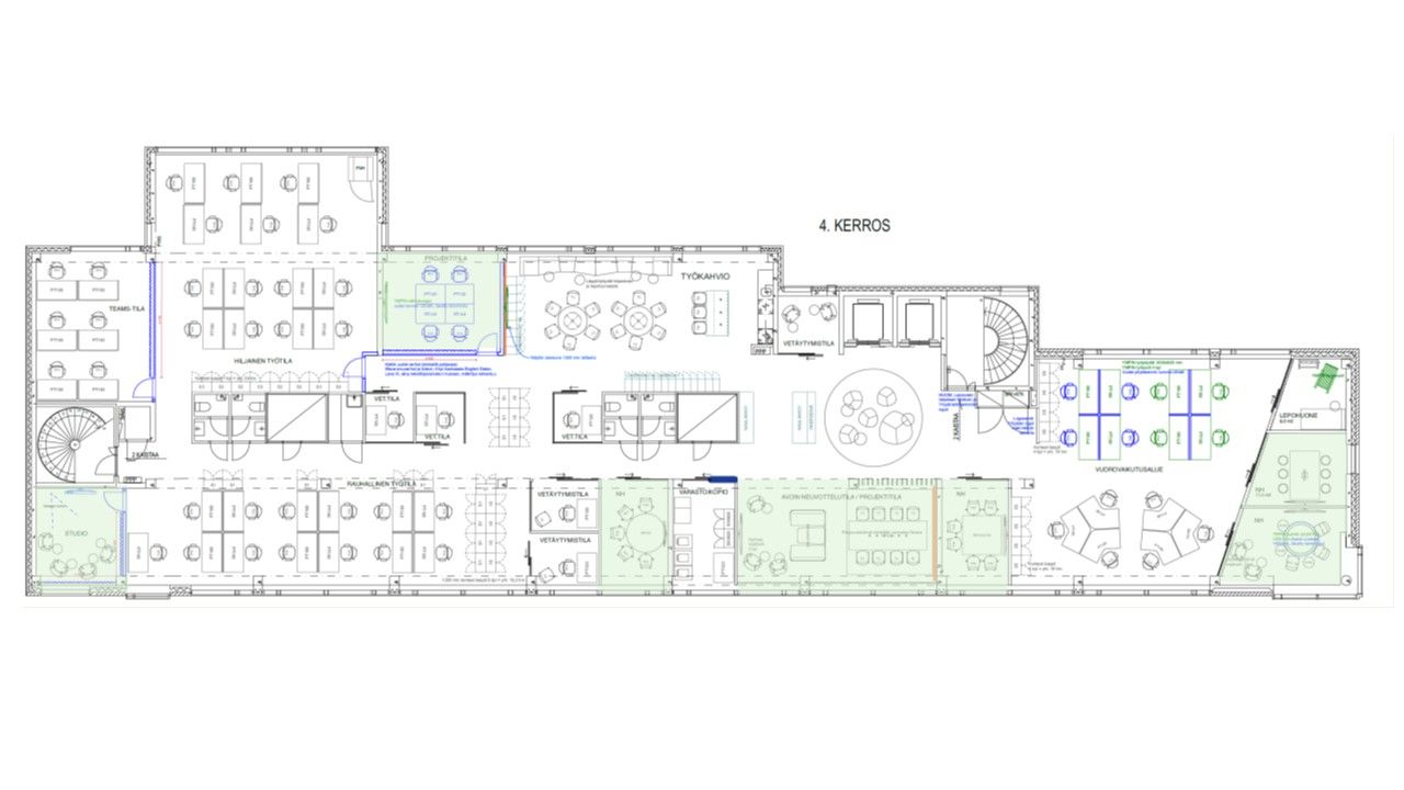
636 m2
Tilajako
Jaettavissa
Pohjapiirros
Kiinteistö
Moderni toimistokiinteistö keskeisellä paikalla Helsingin ydinkeskustassa. Kiinteistö vapautuu kokonaisuudessaan vuokrattavaksi sopimuksen mukaan.
Rakennus on valmistunut vuonna 1999 ja sisältää työtilat noin 200 henkilölle. Kohde on muunneltavuudeltaan varsin hyvä ja talo on helposti jaettavissa usean käyttäjän kohteeksi.
Kiinteistössä on seitsemän maanpäällistä toimistokerrosta, viihtyisä saunaosasto ullakkokerroksessa, kaksi kellarikerrosta, joissa on runsaasti varastotilaa sekä parkkihalli 15 autolle. Toimistotalo on tekniikaltaan hyvässä kunnossa ja tiloiltaan joustavasti muunneltavissa erilaisiksi työympäristöiksi. Talo on myös helposti jaettavissa usean käyttäjän kesken.
Talossa on kaksi hissiä sekä keittiö- ja taukotilat kaikissa kerroksissa. Ensimmäisessä kerroksessa on useita neuvottelu- ja kokoustiloja, jotka on helppo tarvittaessa muuntaa esimerkiksi asiakaspalvelukäyttöön.
Rakennus on valmistunut vuonna 1999 ja sisältää työtilat noin 200 henkilölle. Kohde on muunneltavuudeltaan varsin hyvä ja talo on helposti jaettavissa usean käyttäjän kohteeksi.
Kiinteistössä on seitsemän maanpäällistä toimistokerrosta, viihtyisä saunaosasto ullakkokerroksessa, kaksi kellarikerrosta, joissa on runsaasti varastotilaa sekä parkkihalli 15 autolle. Toimistotalo on tekniikaltaan hyvässä kunnossa ja tiloiltaan joustavasti muunneltavissa erilaisiksi työympäristöiksi. Talo on myös helposti jaettavissa usean käyttäjän kesken.
Talossa on kaksi hissiä sekä keittiö- ja taukotilat kaikissa kerroksissa. Ensimmäisessä kerroksessa on useita neuvottelu- ja kokoustiloja, jotka on helppo tarvittaessa muuntaa esimerkiksi asiakaspalvelukäyttöön.
Pysäköinti
Kellarikerroksessa parkkihalli, joka käsittää 15 autopaikkaa.
Palvelut
Lähimmät lounaspaikat sijaitsevat samassa korttelissa ja etäisyys Kampin keskuksen monipuolisiin palveluihin on alle puoli kilometriä. Alueella on myös hyvät hotelli- ja majoituspalvelut.
Kulkuyhteydet
Hyvät kulkuyhteydet julkisella liikenteellä. Kampin keskus ja metroasema lähellä.
Vapautuu
Heti
Kerros
4 / 8
Energiatehokkuusluokka
Ei lain edellyttämää energiatodistusta
Näkyvällä paikalla
Jaettavissa
Hissi
Ota yhteyttä
ScanReal Oy LKV
Opus Business Park
Hitsaajankatu 24
00810 Helsinki
info@scanreal.fi
Puh:
Näytä puhelinnumero
020 730 8830
Sopivat toimitilat yhdellä otolla!
Kartoitamme toimitilatarpeesi ja etsimme yrityksellesi parhaiten sopivat vapaat toimitilat. Koska vuokranantajat maksavat palvelumme, on tämä yrityksellesi veloituksetonta.
OTA YHTEYTTÄ - SOVI NÄYTTÖ!
Kaikki kohteemme eivät ole netissä, kerro tilatarpeesi niin kartoitamme vaihtoehdot.
Palvelumme on tilanhakijalle ilmainen
Pyydä lisätietoa
