Vuokrataan toimistotilat - Espoo
Bertel Jungin Aukio 1, Leppävaara, 02600 Espoo #10826656
Näyttäviä toimistotiloja vuokrattavissa Alberga Business Parkista
Osoite
Bertel Jungin Aukio 1, 02600 Espoo
Tilatyyppi
Toimistotilaa
324 m2
Kiinteistö
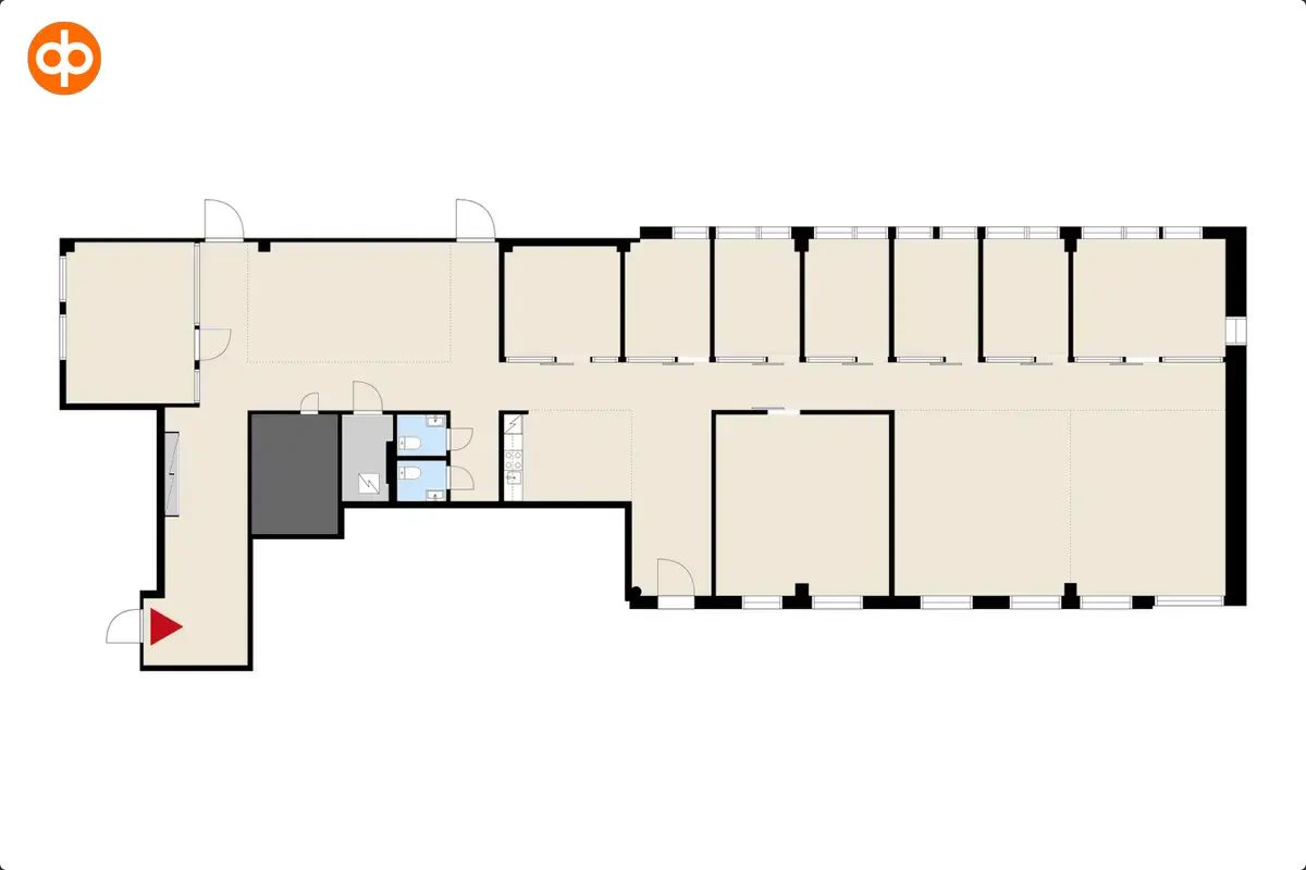
Vuokrataan kolmannen kerroksen toimistotila Alberga Business Parkissa. Tila koostuu avotilasta, erillisistä huoneista, isommasta neuvotteluhuoneesta ja keittiötilasta.
Kiinteistön nykyaikaiset ja monipuoliset palvelut tekevät työarjesta sujuvaa ja mieluisaa. Toimitilalle kuuluu jyvitys yhteisistä tiloista.
Vuokrattavan toimitilan tiedot:
- Pinta-ala: 324 + 7 m² (jyvitys)
- Tilatyyppi: Toimistotila
- Kerros: 4
Albergan Business Park sijaitsee Leppävaarassa monien liikenneyhteyksien varrella. Kiinteistössä on myös lämmitetyt ja lukolliset pyöräpaikat sekä siistit, yhteiset sosiaalitilat.
Ota yhteyttä ja kysy lisää!
Kiinteistön nykyaikaiset ja monipuoliset palvelut tekevät työarjesta sujuvaa ja mieluisaa. Toimitilalle kuuluu jyvitys yhteisistä tiloista.
Vuokrattavan toimitilan tiedot:
- Pinta-ala: 324 + 7 m² (jyvitys)
- Tilatyyppi: Toimistotila
- Kerros: 4
Albergan Business Park sijaitsee Leppävaarassa monien liikenneyhteyksien varrella. Kiinteistössä on myös lämmitetyt ja lukolliset pyöräpaikat sekä siistit, yhteiset sosiaalitilat.
Ota yhteyttä ja kysy lisää!
Pysäköinti
Kiinteistön autotallissa sekä viereisessä pysäköintitalossa on runsaasti paikoitustilaa. Luonnollisesti käytössä on myös sähköautojen latauspisteitä. Vieraspysäköintipaikat löytyvät kiinteistön pihalta.
Vapautuu
Heti
Ota yhteyttä
Arvo Premises Oy
Joakim Kukkonen
Osakas, Toimitilavälittäjä
Näytä puhelinnumero
040 555 8106
Seppo Pakarinen
Osakas, Kiinteistönvälittäjä. LKV, YKV, AKA
Näytä puhelinnumero
040-703 8000
Pyydä lisätietoa
