Vuokrataan tuotantotilat, varastotilat - Turku
Kaurakatu 48, 20740 Turku #10826650
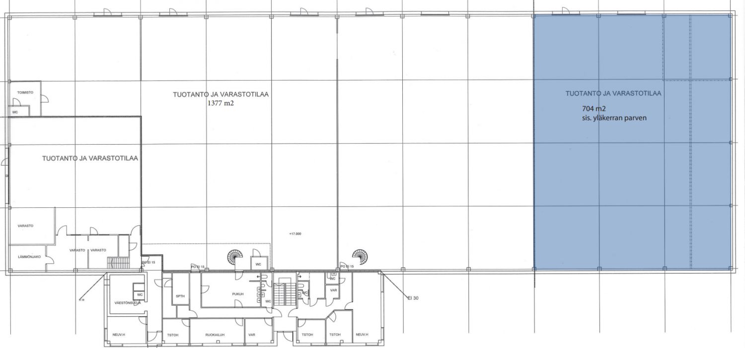
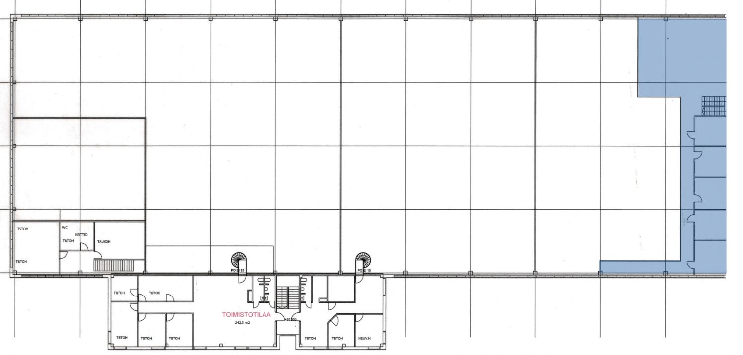
Vuokrattavana varastointi- ja tuotantokäyttöön soveltuvaa toimitilaa Kaurakadulla, Turun Peltolassa.
Osoite
Kaurakatu 48, 20740 Turku
Tilatyyppi
Tuotantotilaa
704 m2
Varastotilaa
704 m2
Yhteensä
704 m2
Kiinteistö
Vuokrattavana varastointi- ja tuotantokäyttöön soveltuvaa toimitilaa omalla sisäänkäynnillä. Tilassa on kaksi nosto-ovea. Tila koostuu isommasta korkeasta tilasta sekä yläkerran parvitilan huoneista, jotka sopivat esimerkiksi toimistoiksi.
Sijainti
Turku
Pysäköinti
Tilaan kuuluu omat autopaikat rakennuksen seinustalla.
Kulkuyhteydet
-Bussi
-Oma auto
-Oma auto
Vapautuu
Heti
Kerros
1
Energiatehokkuusluokka
Ei lain edellyttämää energiatodistusta
Katutasossa
Näkyvällä paikalla
Ota yhteyttä
REALIUM OY LKV
Tammasaarenkatu 1, 00180 Helsinki
Vaihde:
Näytä puhelinnumero
010 326 346
Tuomo Mäkelä
tuomo.makela@realium.fi
p.
Näytä puhelinnumero
044 050 1158
Joel Keto
joel.keto@realium.fi
p.
Näytä puhelinnumero
045 317 0330
KAIKKI TILAVAIHTOEHDOT KERRALLA!
SOITA - MEILAA JA TILAA NÄYTTÖ!
Ilmainen palvelu tilanhakijoille.
Kartoitamme parhaat tilavaihtoehdot.
Kaikki kohteet eivät ole netissä.
Pyydä lisätietoa
