Vuokrataan liiketilat - Tampere
Kullervonkatu 7, Tammela, 33100 Tampere #10826574
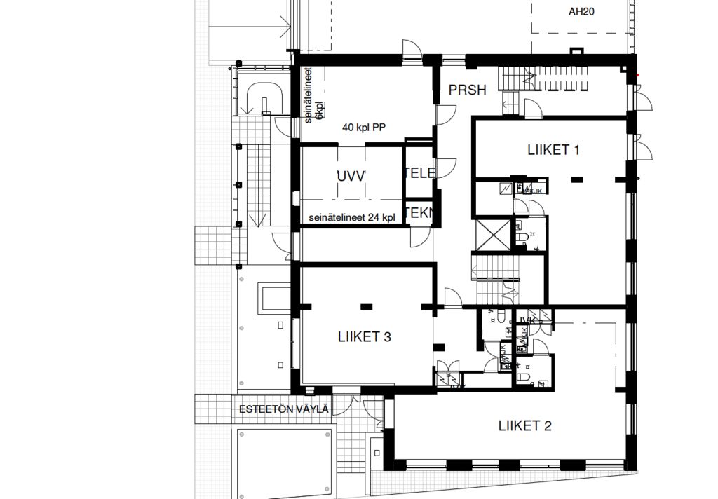
Uutta liiketilaa asuintalon kivijalassa, Tampereen Tammelassa.
Tämä 66,5 m² liiketila sijaitsee katutasossa. Tila on avonainen, ja siihen kuuluu oma keittiöpiste ja wc-tila. Pohjakuvassa tämä liiketila on LT2. Liiketiloissa on jäähdytys.
Tila ei sovellu ravintola-, kahvila- tai kampaamotoimintaan. This premise is not suitable for a restaurant or a cafeteria or a barber shop.
Kullervonkatu 7 on vuonna 2021 valmistunut asuintalo Tampereen Tammelassa. Alueella on monipuoliset palvelut, kattava valikoima lounasravintoloita, ja se on vilkas asuinalue. Keskusta sijaitsee lyhyen matkan päässä.
Kysy lisää numerosta 044 723 4700 tai info@bref.fi. Palvelumme on tilanhakijoille ilmainen.
Bureau Real Estate Finland Oy
Lars Sonckin kaari 16, 02600 Espoo
Näytä puhelinnumero
0447234700
Bureau Real Estate Finland Oy
https://www.bref.fi