Vuokrataan toimistotilat - Kuopio
Asemakatu 38-40, Kuopio, 70110 Kuopio #10826572
Jaettavaa toimistotilaa Kuopion Asemakadulta
Osoite
Asemakatu 38-40, 70110 Kuopio
Tilatyyppi
Toimistotilaa
310 m2
Muuta
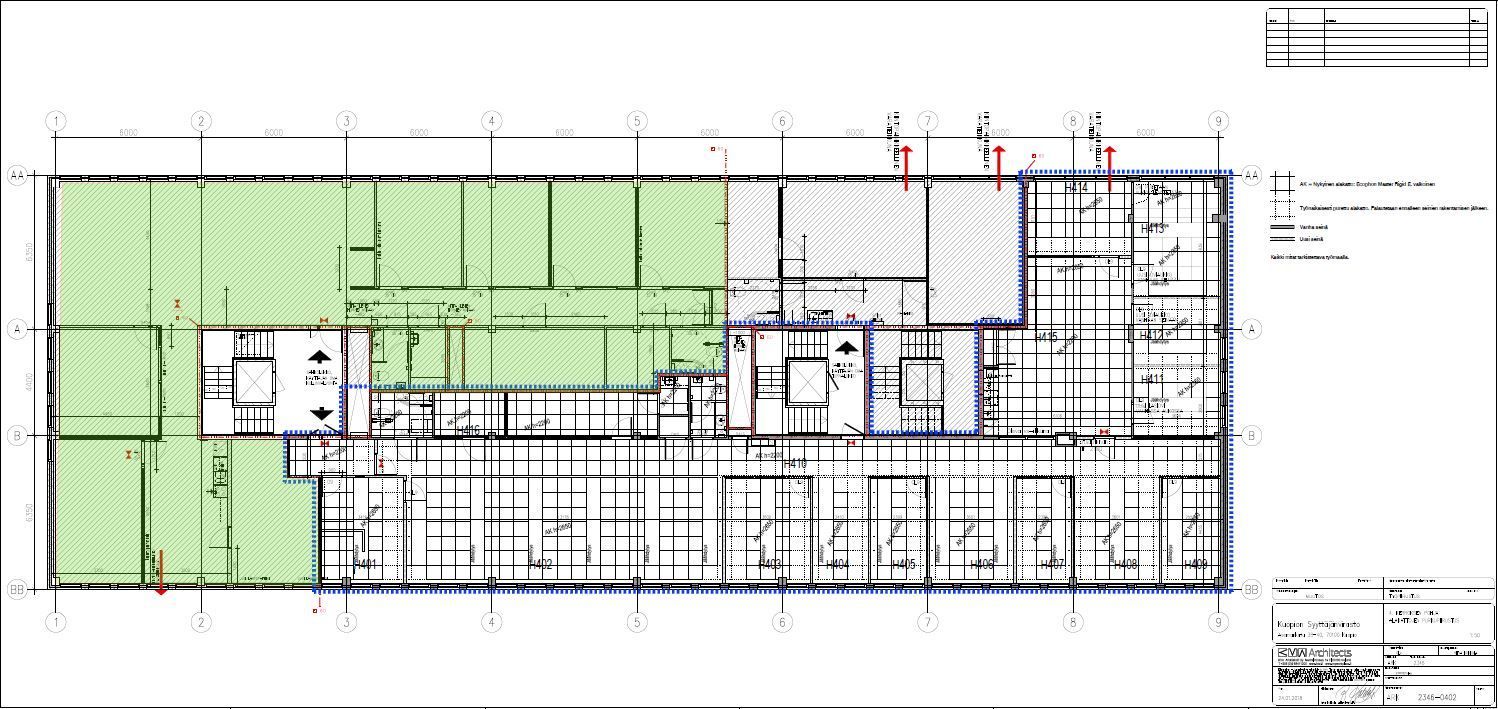
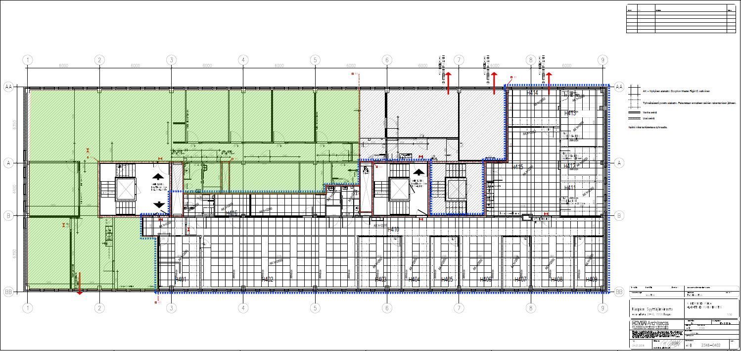
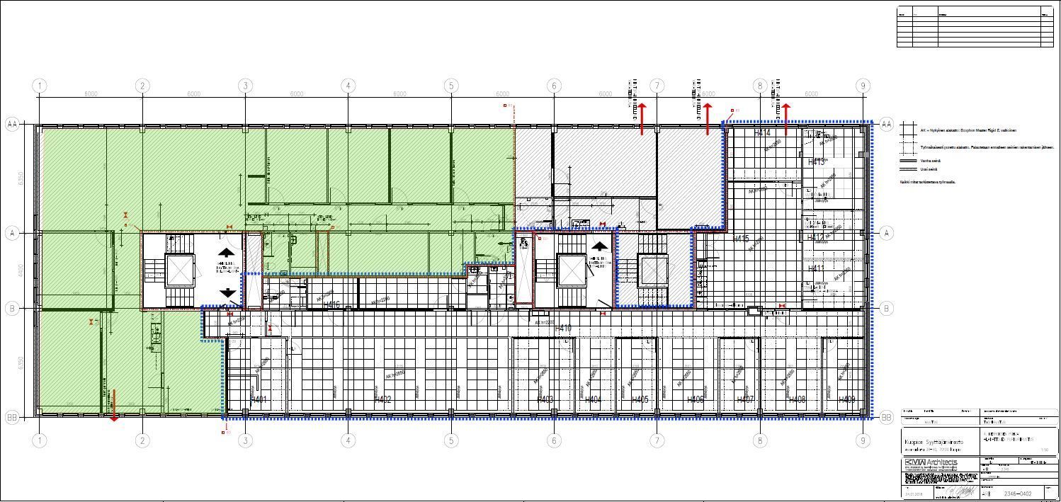
Vuokrataan 4. kerroksen saneerattu toimistotila Asemakatu 38–40:ssa. Kiinteistössä toimii parhaillaan Kuopion kaupungin alaisia organisaatioita sekä muita valtiollisia virastoja. Rakennus on kokonaan peruskorjattu vuosina 2006 – 2009 ja vastaa talotekniikaltaan täysin nykyaikaa. Kiinteistön oma parkkihalli sekä tien vastakkaisella puolella sijaitseva parkkihalli. Kuopion keskustan palvelut sijaitsevat kiinteistöltä kävelymatkan etäisyydellä. Kysy myös yksittäisiä työhuoneita!
Vapautuu
Kysy
Kerros
4
Ota yhteyttä
Pyydä lisätietoa
