Vuokrataan toimistotilat - Espoo
Linnoitustie 4, Leppävaara, 02600 Espoo #10826498
Korkeatasoista ja avaraa toimistotilaa Quartetto Business Parkissa, Leppävaarassa.
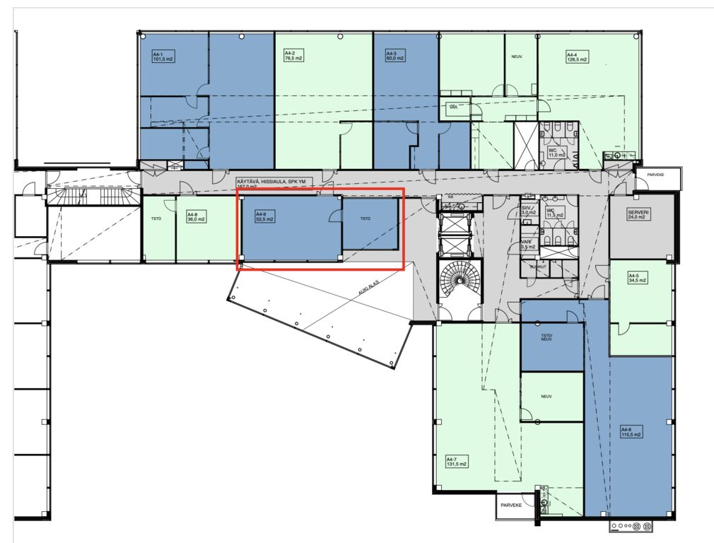
Tämä 52,5 m² toimistotila sijaitsee kiinteistön 4. kerroksessa. Toimosto on avotilaa, jossa myös yksi neuvotteluhuone. Sosiaalitilat ovat yhteiskäyttöiset.
Quartetto Business Park koostuu yhdeksästä eri toimistorakennuksesta, jotka ovat valmistuneet vuosina 2001-2012. Kiinteistöistä löytyvät kattavat palvelut yrityksen liiketoiminnan tueksi. Quartetto sijaitsee erinomaisella paikalla ja se on helposti saavutettavissa niin omalla autolla kuin julkisella liikenteellä. Business Parkilla on myös runsaasti autohallipaikkoja.
Kysy lisää numerosta 044 723 4700 tai info@bref.fi. Palvelumme on tilanhakijoille ilmainen.
Hissi
Bureau Real Estate Finland Oy
Lars Sonckin kaari 16, 02600 Espoo
Näytä puhelinnumero
0447234700
Bureau Real Estate Finland Oy
https://www.bref.fi