Vuokrataan liiketilat - Helsinki
Tyynenmerenkatu 3, Jätkäsaari, 00220 Helsinki #10826497
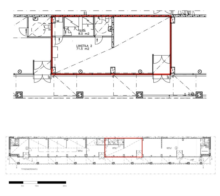
Katutason liiketilaa Helsingin Jätkäsaaressa.
Tämä 71,5 m² liiketila sijaitsee kiinteistön 1. kerroksessa. Tila on avonainen ja siihen kuuluu oma wc-tila.
Tila ei sovellu ravintola-, kahvila- tai parturi-kampaamo-toimintaan. This premise is not suitable for a restaurant, cafeteria or a barber shop.
Tyynenmerenkatu 3 on vuonna 2014 valmistunut liike- ja asuinkiinteistö trendikkäässä Jätkäsaaressa. Alue kehittyy jatkuvasti ja Ruoholahden alueen palvelut ovat kävelyetäisyydellä. Kiinteistö sijaitsee hyvien kulkuyhteyksien varrella. Kiinteistön edestä löytyy mm. raitiovaunupysäkki.
Kysy lisää numerosta 044 723 4700 tai info@bref.fi. Palvelumme on tilanhakijoille ilmainen.
Bureau Real Estate Finland Oy
Lars Sonckin kaari 16, 02600 Espoo
Näytä puhelinnumero
0447234700
Bureau Real Estate Finland Oy
https://www.bref.fi