Vuokrataan toimistotilat - Helsinki
Töölönkatu 4, Töölö, 00100 Helsinki #10826493
Toimistotilaa Helsingin Kuparitalossa Etu-Töölössä.
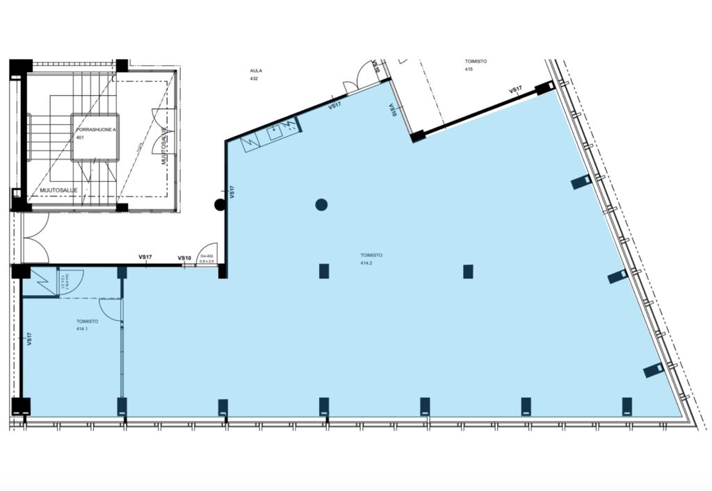
Tämä 223,5 m² toimistotila sijaitsee kiinteistön 4. kerroksessa. Tämä poikkeuksellisen valoisa huoneisto sijaitsee Kuparitalon “terävässä kärjessä” josta avautuu upeat näköalat joka suuntaan. Kuvat ovat yleiskuvia kiinteistön remontoiduista tiloista.
Tämä modernisoitu kiinteistö sijaitsee hyvien kulkuyhteyksien varrella Eduskuntatalon vieressä. Kuparitalo on toiminut aikaisemmin Outokummun pääkonttorina, jonka vuoksi mm. sen julkisivussa ja sisätiloissa on käytetty materiaalina kuparia. Kiinteistön tilat ovat helposti muokattavissa vuokralaisen tarpeiden mukaan.
Kysy lisää numerosta 044 723 4700 tai info@bref.fi. Palvelumme on tilanhakijoille ilmainen.
Hissi
Bureau Real Estate Finland Oy
Lars Sonckin kaari 16, 02600 Espoo
Näytä puhelinnumero
0447234700
Bureau Real Estate Finland Oy
https://www.bref.fi