Vuokrataan liiketilat - Helsinki
Mikonkatu 2, Keskusta, 00100 Helsinki #10826492
Liiketilaa keskeisellä paikalla Helsingin keskustassa.
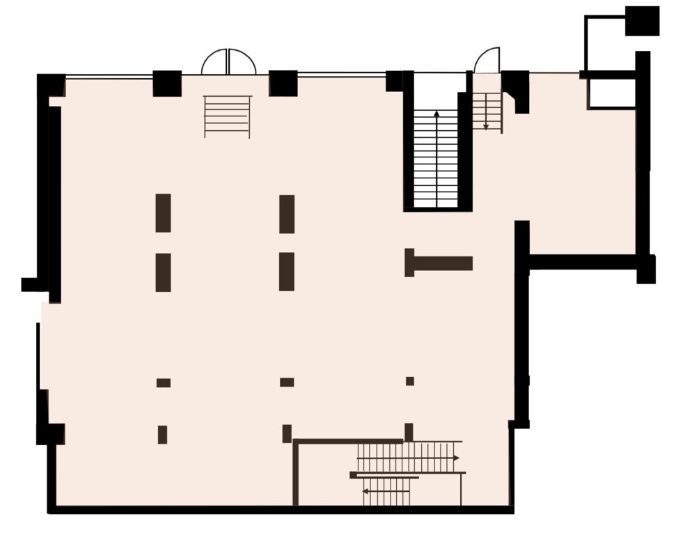
Tämä kauppakäytävän puolelle avautuva 346 m² liiketila sijaitsee kiinteistön 1. kerroksessa. Tila on mahdollista jakaa tarpeen mukaan kahteen osaan. Sosiaali- ja varastotilaa vuokrattavissa kellarikerroksesta.
Tila ei sovellu kahvila- tai ravintolatoimintaan. This premise is not suitable for a cafeteria or a restaurant.
Mikonkatu 2 / Pohjoisesplanadi 35 on valmistunut vuonna 1888 ja sen on suunnitellut K.A. Wreden. Se sijaitsee erinomaisella paikalla Helsingin ydinkeskustassa. Kiinteistössä on suoritettu perusparannus kunnioittaen sen historiaa ja arkkitehtuuria. Kaikissa tiloissa on nyt koneellinen ilmanvaihto ja jäähdytys. Modernisoidut tilat valmistuivat loppuvuodesta 2016. Kiinteistö tarjoaa laadukkaita toimistotiloja monenkokoisille yrityksille ja sen tilat ovat hyödynnettävissä mm. monitilatoimistoina.
Kysy lisää numerosta 044 723 4700 tai info@bref.fi. Palvelumme on tilanhakijoille ilmainen.
Bureau Real Estate Finland Oy
Lars Sonckin kaari 16, 02600 Espoo
Näytä puhelinnumero
0447234700
Bureau Real Estate Finland Oy
https://www.bref.fi