Vuokrataan toimistotilat - Helsinki
Itämerenkatu 1, Ruoholahti, 00180 Helsinki #10826436
Tasokasta toimistotilaa Helsingin Ruoholahdessa
Osoite
Itämerenkatu 1, 00180 Helsinki
Tilatyyppi
Toimistotilaa
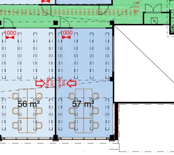
57 m2
Pysäköinti
Kyllä
Muuta
Vuokrataan tasokasta ja siistiä toimistotilaa Ruoholahdesta, vuokrattava tila on 3. kerroksen 57m² toimistotila.
Kiinteistö Oy Westport on nykyaikaisella tekniikalla varustettu ja vuonna 1998 valmistunut rakennus. Kiinteistö on erinomaisella sijainnilla Helsingin tuloväylien risteyspisteessä. Ruoholahden Metroasemalle on vain 350 metriä/4minuutin kävelymatka ja oman auton käyttäjiä palvelee kiinteistössä olevat autohallipaikat.
Kiinteistön tehokkaat toimistotilat soveltuvat niin avotoimistoiksi kuin myös huonetoimistoksi vuokralaisen tarpeen ja toivomusten mukaisesti.
Tila vapautuu heinä-/elokuussa.
Tervetuloa tutustumaan, varaathan välittäjältä oman esittelyaikasi ja kysy tarjousta tästä tilasta.
Palvelumme on tilanhakijalle veloitukseton!
Kiinteistö Oy Westport on nykyaikaisella tekniikalla varustettu ja vuonna 1998 valmistunut rakennus. Kiinteistö on erinomaisella sijainnilla Helsingin tuloväylien risteyspisteessä. Ruoholahden Metroasemalle on vain 350 metriä/4minuutin kävelymatka ja oman auton käyttäjiä palvelee kiinteistössä olevat autohallipaikat.
Kiinteistön tehokkaat toimistotilat soveltuvat niin avotoimistoiksi kuin myös huonetoimistoksi vuokralaisen tarpeen ja toivomusten mukaisesti.
Tila vapautuu heinä-/elokuussa.
Tervetuloa tutustumaan, varaathan välittäjältä oman esittelyaikasi ja kysy tarjousta tästä tilasta.
Palvelumme on tilanhakijalle veloitukseton!
Vapautuu
Kysy
Rakennusvuosi
1998
Ota yhteyttä
Tuloskiinteistöt Oy
Rikhardinkatu 2 B 5, 00130 Helsinki
Näytä puhelinnumero
(09) 6841 620
Jorma Ryynänen
Commercial Real Estate Advisor LKV, LVV
Näytä puhelinnumero
+358 40 708 4064
Nina Meyke
Commercial Real Estate Advisor
Näytä puhelinnumero
+358 50 466 1519
Pyydä lisätietoa
