Vuokrataan toimistotilat - Espoo
Niittytaival 13, Niittykumpu, 02200 Espoo #10826372
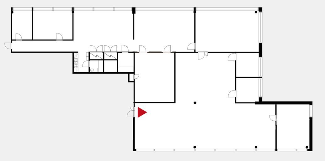
Espoossa Länsiväylän varrella vuokrattavana toimitilaa 3.kerroksessa. Kiinteistössä vuokrattavat sauna- ja kokoustilat, aulapalvelut, lounasravintola ja pihalla autopaikkoja.
Lisätietoja numerosta 020 7290 710. Lisää kohteita osoitteessa www.premises.fi.
Kohteella ei ole lain edellyttämää energiatodistusta.Kerros: 3
Osoite
Niittytaival 13, 02200 Espoo
Tilatyyppi
Toimistotilaa
491 m2
Kulkuyhteydet
Espoossa Länsiväylän varrella Niittykummussa hyvät liikenneyhteydet
Ota yhteyttä
CRE PREMISES
Puh. Näytä puhelinnumero 020 7290 710
Vantaankoskentie 14
01670 VANTAA
Pyydä lisätietoa
