Vuokrataan toimistotilat - Espoo
Ahventie 4, Haukilahti, 02170 Espoo #10826368
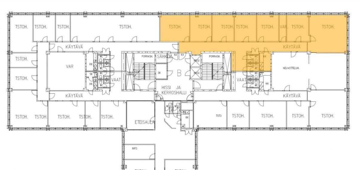
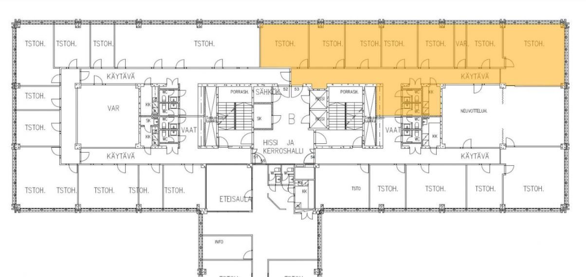
Siisti toimistotila omalla keittokomerolla, pienellä varastolla ja kahdella wc:llä varustettuna Business Parkista kuudennesta kerroksesta. Ohessa kuvia yleisistä tiloista.
Ahti Business Park on monipuolinen yrityspuisto, joka sijaitsee Espoon Haukilahdessa. Kiinteistössä on saatavilla monipuoliset peruspalvelut, kuten tietoliikenne-, siivous- ja aulapalvelut.
Kiinteistössä on vuokrattavana viihtyisä saunaosasto ylimmässä kerroksessa sekä neuvottelutiloja ala-aulassa. Pihalla on vuokrattavana autopaikkoja. Kiinteistössä toimii lounasravintola Ravintola Haukilahden Helmi, josta on mahdollista tilata myös kokoustarjoilut.
Lisätietoja numerosta 020 7290 710. Lisää kohteita osoitteessa www.premises.fi.
Kohteella ei ole lain edellyttämää energiatodistusta tai energialuokka ei tiedossa.Kerros: 6
CRE PREMISES
Puh. Näytä puhelinnumero 020 7290 710
Vantaankoskentie 14
01670 VANTAA
