Vuokrataan toimistotilat - Helsinki
Töölönkatu 4, Etu-Töölö, 00100 Helsinki #10826359
Helsingin Kuparitalo on arvokkaan oloinen, mutta moderni kiinteistö valtakunnan päätöksenteon ytimessä aivan Eduskuntatalon vieressä. Historiasta Outokummun pääkonttorina kertoo niin julkisivussa kuin monissa sisätiloissakin käytetty kupari.
Talo tarjoaa henkilöstöravintolan ja poikkeuksellisen hyvät catering-palvelut.
Kuparitalo sijaitsee Etu-Töölössä hyvien kulkuyhteyksien ja palveluiden varrella, kävelymatkan päässä Kampin keskuksesta.
Kiinteistössä on hissi sekä autopaikkoja pihalla 14 kpl ja autohallissa 5kpl. Autopaikkoja on myös vuokrattavissa naapurikiinteistöltä.
Lisätiedot 020 7290 710. Lisää kohteita osoitteesta www.premises.fi
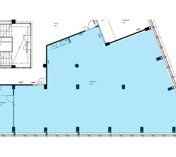
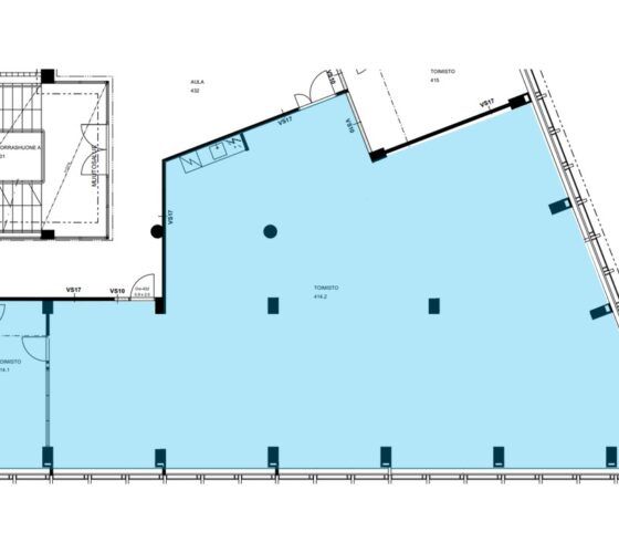
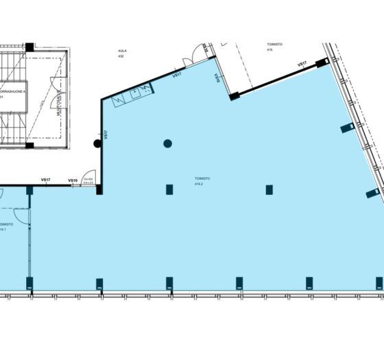
Kohteella ei ole lain edellyttämää energiatodistusta tai energialuokka ei tiedossa.Kerros: 4
CRE PREMISES
Puh. Näytä puhelinnumero 020 7290 710
Vantaankoskentie 14
01670 VANTAA
