Vuokrataan toimistotilat - Helsinki
Kalevankatu 28, Kamppi, 00100 Helsinki #10826343
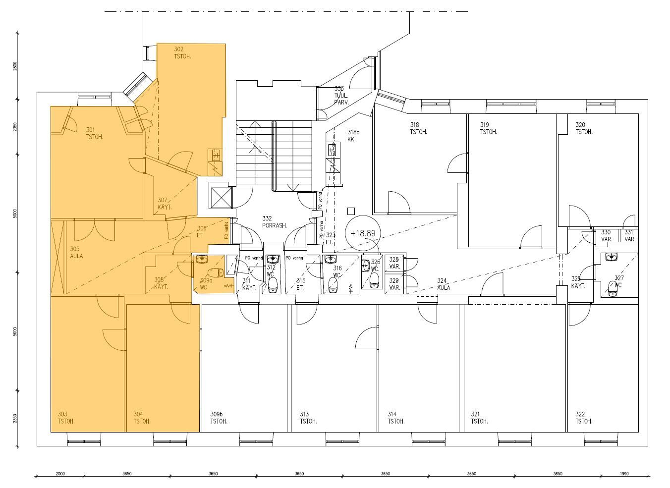
Tämä hurmaava toimisto löytyy arvokkaan vanhan rakennuksen kolmannesta kerroksesta Kalevankadulta, pienen kävelymatkan päässä Kampin kauppakeskuksesta ja metroasemalta.
Lähin bussipysäkki sijaitsee vain noin 150 metrin päässä. Kampin bussiterminaaliin sekä metroasemalle kävelee noin 5 minuutissa.
Lisätietoja 020 7290 710. Lisää kohteita www.premises.fi
Kohteella ei ole lain edellyttämää energiatodistusta tai energialuokka ei tiedossa.Kerros: 3
Osoite
Kalevankatu 28, 00100 Helsinki
Tilatyyppi
Toimistotilaa
93 m2
Ota yhteyttä
CRE PREMISES
Puh. Näytä puhelinnumero 020 7290 710
Vantaankoskentie 14
01670 VANTAA
Pyydä lisätietoa
