Vuokrataan toimistotilat - Helsinki
Lintulahdenkatu 10, Sörnäinen, 00500 Helsinki #10826164
Vapaana toimistotilaa Lintulahdenkulman rakenushistoriallisesti arvokkaasta kiinteistöstä. Yli 100 vuotias kiinteistö on muutettu toimistoksi, joka tarjoaa laadukkaat toimitilat.
Osoite
Lintulahdenkatu 10, 00500 Helsinki
Tilatyyppi
Toimistotilaa
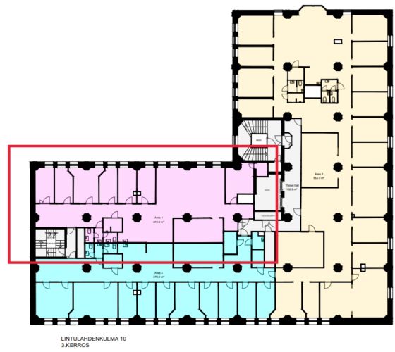
244 m2
Kiinteistö
Lintulahdenkulmasta löytyy eri kokoisia persoonallisia tiloja pienistä huoneista isoihin kokonaisuuksiin saakka. Tilat on mahdollista remontoida käyttäjän työskentelytapoihin sopivaksi.
Kiinteistöstä useita tilavaihtoehtoja vapaana
Vuokrattavan toimitilan tiedot:
- Pinta-ala: 244 m²
- Tilatyyppi: Toimistotila
- Kerros: 3
- Mukana 2kpl autopaikkoja!
Lounasravintola tarjoaa päivittäin maittavan lounaan lisäksi cateringpalvelut ja voit ostaa vaikkapa paikan päällä paistettua leipää kotiin vietäväksi. Kiinteistössä on erikseen vuokrattavissa neuvotteluhuoneita sekä ylimmässä kerroksessa viihtyisä saunatila.
Ota yhteyttä ja kysy lisää!
Kiinteistöstä useita tilavaihtoehtoja vapaana
Vuokrattavan toimitilan tiedot:
- Pinta-ala: 244 m²
- Tilatyyppi: Toimistotila
- Kerros: 3
- Mukana 2kpl autopaikkoja!
Lounasravintola tarjoaa päivittäin maittavan lounaan lisäksi cateringpalvelut ja voit ostaa vaikkapa paikan päällä paistettua leipää kotiin vietäväksi. Kiinteistössä on erikseen vuokrattavissa neuvotteluhuoneita sekä ylimmässä kerroksessa viihtyisä saunatila.
Ota yhteyttä ja kysy lisää!
Vapautuu
Heti
Näkyvällä paikalla
Ota yhteyttä
Arvo Premises Oy
Joakim Kukkonen
Osakas, Toimitilavälittäjä
Näytä puhelinnumero
040 555 8106
Seppo Pakarinen
Osakas, Kiinteistönvälittäjä. LKV, YKV, AKA
Näytä puhelinnumero
040-703 8000
Pyydä lisätietoa
