Vuokrataan toimistotilat - Espoo
Tinurinkuja 4, Leppävaara, 02650 Espoo #10826145
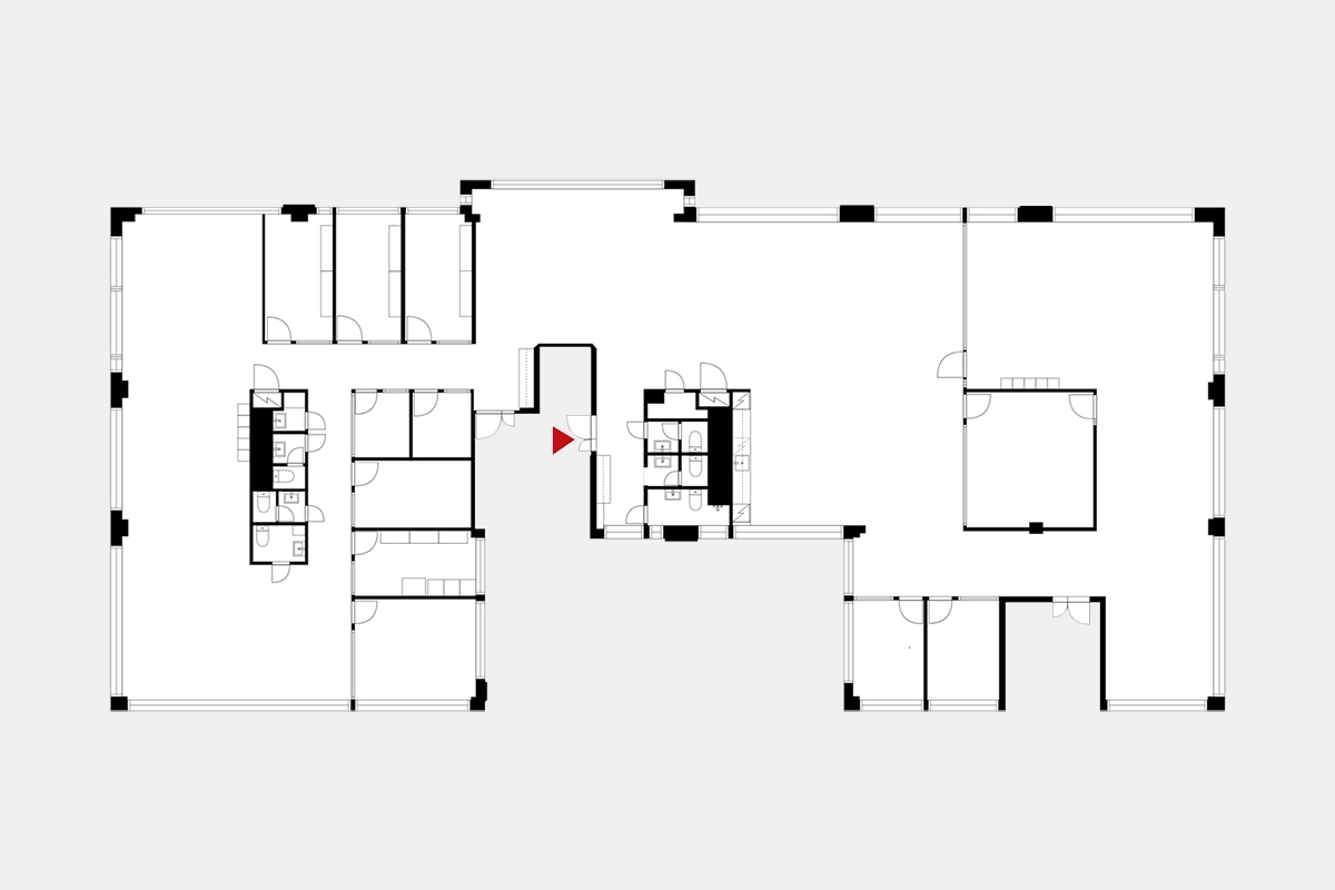
Hyvin hoidetun kiinteistön kolmannessa kerroksessa vuokrattavissa 523 m² toimisto Espoon Leppävaarasta.
Osoite
Tinurinkuja 4, 02650 Espoo
Tilatyyppi
Toimistotilaa
523 m2
Tilajako
Jaettavissa
295/228 m²
Pohjapiirros
Kiinteistö
Tinurinkuja sijaitsee Espoon Leppävaarassa, Läkkitorin kupeessa. Tinurinkujalle pääsee helposti autolla Kehä 1 pitkin. Autoille on reilusti pysäköintitilaa. Mikäli käytät julkisia, Leppävaaran juna-asema sijaitsee vain muutaman minuutin kävelymatkan päässä.
Leppävaara on vehreä kaupunginosa, jossa on hyvät palvelut ja paljon suosittuja ulkoilureittejä. Kiinteistön läheisyydessä toimii lukuisia ravintoloita ja kahviloita, lisäksi lähikauppa ja kuntosali sijaitsevat aivan kivenheiton päässä. Viereisessä kauppakeskus Sellossa on suuremmat marketit ja laajasti muitakin palveluita.
Neljännen kerroksen toimitilakokonaisuus on mahdollista vuokrata kokonaan, mutta se voidaan myös jakaa kahdeksi pienemmäksi tilaksi. Tilat on muokattavissa tukemaan yrityksesi toimintaa.
Leppävaara on vehreä kaupunginosa, jossa on hyvät palvelut ja paljon suosittuja ulkoilureittejä. Kiinteistön läheisyydessä toimii lukuisia ravintoloita ja kahviloita, lisäksi lähikauppa ja kuntosali sijaitsevat aivan kivenheiton päässä. Viereisessä kauppakeskus Sellossa on suuremmat marketit ja laajasti muitakin palveluita.
Neljännen kerroksen toimitilakokonaisuus on mahdollista vuokrata kokonaan, mutta se voidaan myös jakaa kahdeksi pienemmäksi tilaksi. Tilat on muokattavissa tukemaan yrityksesi toimintaa.
Vapautuu
Heti
Kerros
3
Energiatehokkuusluokka
C
Näkyvällä paikalla
Jaettavissa
Hissi
Ota yhteyttä
ScanReal Oy LKV
Opus Business Park
Hitsaajankatu 24
00810 Helsinki
info@scanreal.fi
Puh:
Näytä puhelinnumero
020 730 8830
Sopivat toimitilat yhdellä otolla!
Kartoitamme toimitilatarpeesi ja etsimme yrityksellesi parhaiten sopivat vapaat toimitilat. Koska vuokranantajat maksavat palvelumme, on tämä yrityksellesi veloituksetonta.
OTA YHTEYTTÄ - SOVI NÄYTTÖ!
Kaikki kohteemme eivät ole netissä, kerro tilatarpeesi niin kartoitamme vaihtoehdot.
Palvelumme on tilanhakijalle ilmainen
Pyydä lisätietoa
