Vuokrataan tuotantotilat - Naantali
Patenttikatu 10, Luolala, 21100 Naantali #10826090
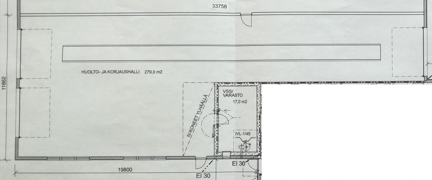
Raskaankaluston korjaamotila, jossa on viimeksi toiminut henkilöautokorjaamo. Tilat soveltuvat hyvin korjaamokäyttöön. Tilassa on huoltokuilu ja läpiajomahdollisuus. Tilaan johtaa kolme nosto-ovea ja korkeutta riittää kaikelle tiellä liikkuvalle.
Suuri piha-alue, jossa tilaa hyvin raskaalle kalustolle tai henkilöautoille. Samassa rakennuksessa toimii lounasravintola ja rekkapesu.
Tilat ovat heti vapaat.
Osoite
Patenttikatu 10, 21100 Naantali
Tilatyyppi
Tuotantotilaa
296 m2
Tila soveltuu
Autokorjaamo
Vuokra
3000.00 e/kk
Vapautuu
Kysy
Rakennusvuosi
2005
Huoneiden lukumäärä
1
Energiatehokkuusluokka
Ei lain edellyttämää energiatodistusta
Ota yhteyttä
RHG Real Estate
Hämeenkatu 2 B20, 20500 Turku
Näytä puhelinnumero
020 734 4020
Juho Viljanen
LKV
Näytä puhelinnumero
040 741 7522
Pyydä lisätietoa
