Vuokrataan toimistotilat - Helsinki
Karvaamokuja 2A, Pitäjänmäki, 00380 Helsinki #10826079
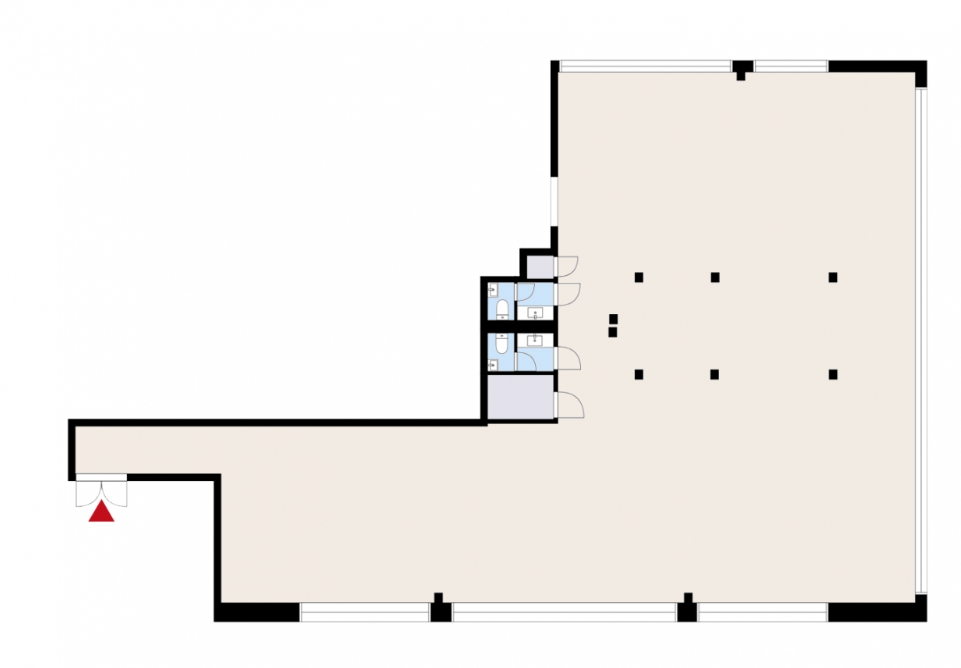
Tässä 349 m² tilassa yhdistyvät muunneltavuus ja toiminnallisuus. Tilaa on juuri sopivasti tiimeille, projekteille ja neuvotteluille, ilman yhtään hukkaneliöitä. Tilat ovat valoisat ja suurista ikkunoista voit nähdä kauniit maisemat toimiston jokaisesta nurkasta.
The Front on Pitäjänmäen modernein ja palvelurikkain toimitilakohde, joka on suunniteltu vastaamaan nykytyöelämän monipuolisia tarpeita. Kiinteistössä yhdistyvät korkealuokkaiset työympäristöt ja arkea tukevat palvelut: aulapalvelu, lounasravintola, oma kahvila-leipomo sekä neuvottelukeskus tarjoiluineen. Lisäksi tarjolla on virkistäviä hyvinvointipalveluita ja päähierontoja työn lomaan.
LEED Platinum -sertifioitu kiinteistö tukee kestävää työskentelyä mm. sähköautojen latauspaikoilla ja erinomaisilla julkisen liikenteen yhteyksillä. Tässä kiinteistössä työskentely on sujuvaa, vastuullista ja viihtyisää – aidosti modernia työpäivää varten.
Me Croisettella autamme teitä löytämään teille parhaat tilat! Olemme puolueettomia asiantuntijoita ja tunnemme toimitilamarkkinat, talot sekä tilat vankalla kokemuksella. Meillä on välityksessä kaikki toimitilat ja tiedämme niiden alustavat vuokratasot.
Tehtävämme on tehdä toimitilahaustanne onnistunut ja helppo. Saamme palkkiomme kiinteistönomistajalta, joten sinulle palvelumme on täysin maksuton.
Hissi
Croisette Real Estate Partner
Erottajankatu 5 A 6, 00130 Helsinki
Näytä puhelinnumero
+358 400 585 857
Croisette Vuokraus
Näytä puhelinnumero
+358400585857
