Vuokrataan liiketilat - Helsinki
Vuotie 47, Vuosaari, 00990 Helsinki #10826077
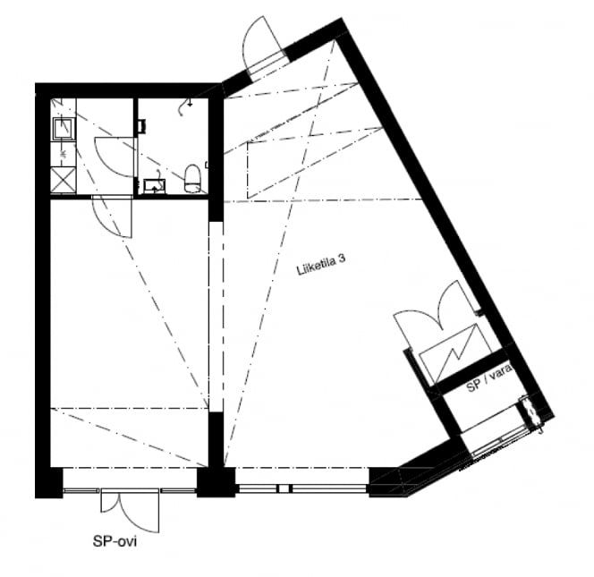
Nyt vuokrattavissa 81,5 m² huippumoderni liiketila Vuosaaresta. Tila tarjoaa toimivat tilaratkaisut keskeiseltä paikalta. Tila on valoisa ja helposti muunneltavissa eri liiketoimintojen tarpeisiin. Tämä olisi erinomainen valinta esimerkiksi erikoisliikkeelle, hoitopalvelulle tai vaikka pienemmälle kahvilalle. Asiakasvirtaa tulee riittämäään, joten enää vuokralainen puuttuu.
Vuotie 47:ään nouseva 33-kerroksinen Atlas-tornitalo on Vuosaaren uusi maamerkki. Se yhdistää asumisen, palvelut ja liiketoiminnan modernilla tavalla. Sijainti kaupungin kasvavassa keskuksessa tukee menestyvää liiketoimintaa. Rakennus on Vuotien ja Bertha Pauligin kadun kulmassa, vilkkaasti liikennöidyllä paikalla.
Tänne on helppo tulla niin julkisilla kulkuvälineillä kuin omalla autollakin. Alue kehittyy jatkuvasti ja tarjoaa monipuoliset palvelut sekä merellistä tunnelmaa. Atlas on loistava sijainti yritykselle, joka haluaa olla näkyvillä ja helposti saavutettavissa.
Me Croisettella autamme teitä löytämään teille parhaat tilat! Olemme puolueettomia asiantuntijoita ja tunnemme toimitilamarkkinat, talot sekä tilat vankalla kokemuksella. Meillä on välityksessä kaikki toimitilat ja tiedämme niiden alustavat vuokratasot.
Tehtävämme on tehdä toimitilahaustanne onnistunut ja helppo. Saamme palkkiomme kiinteistönomistajalta, joten sinulle palvelumme on täysin maksuton.
Hissi
Croisette Real Estate Partner
Erottajankatu 5 A 6, 00130 Helsinki
Näytä puhelinnumero
+358 400 585 857
Croisette Vuokraus
Näytä puhelinnumero
+358400585857
