Vuokrataan toimistotilat - Helsinki
Unioninkatu 30, Kluuvi, 00100 Helsinki #10826048
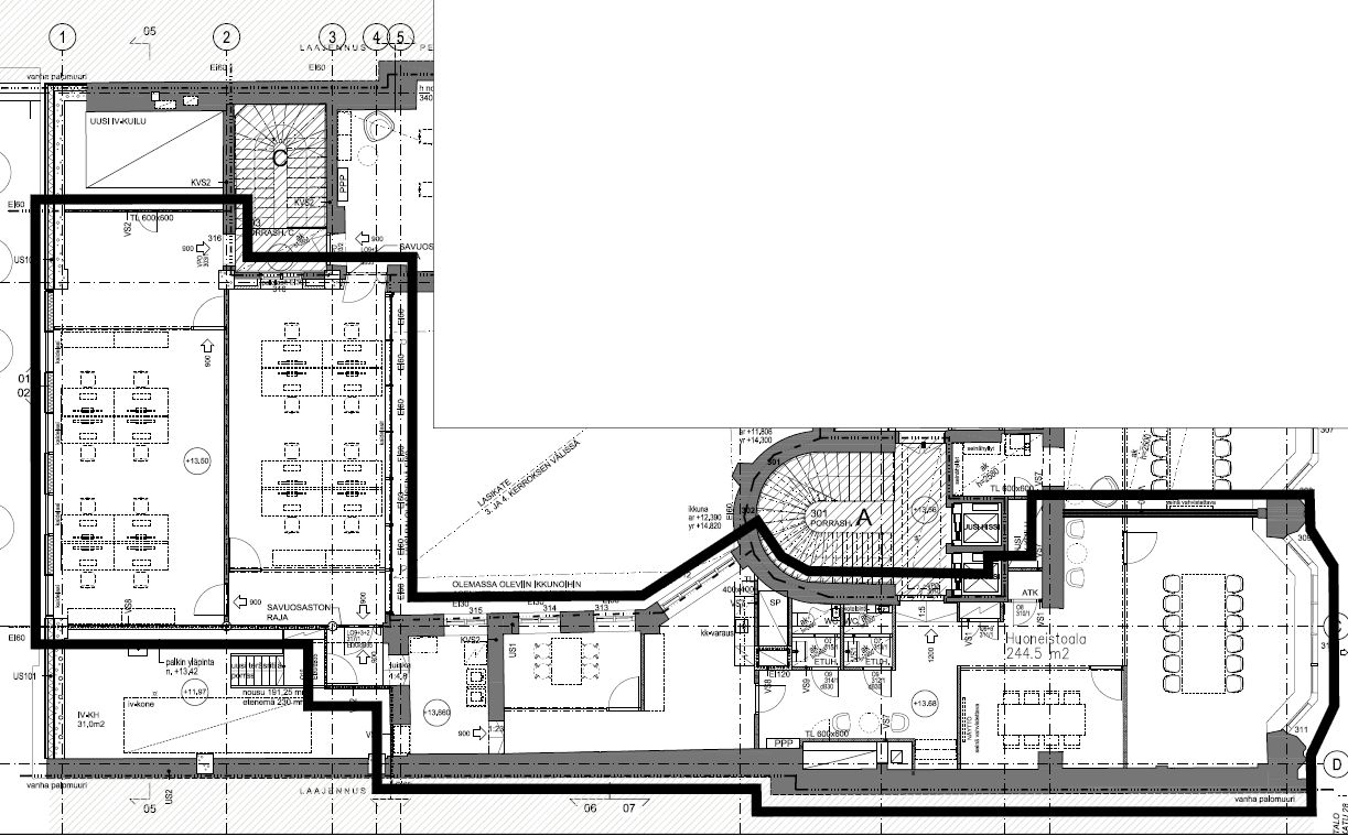
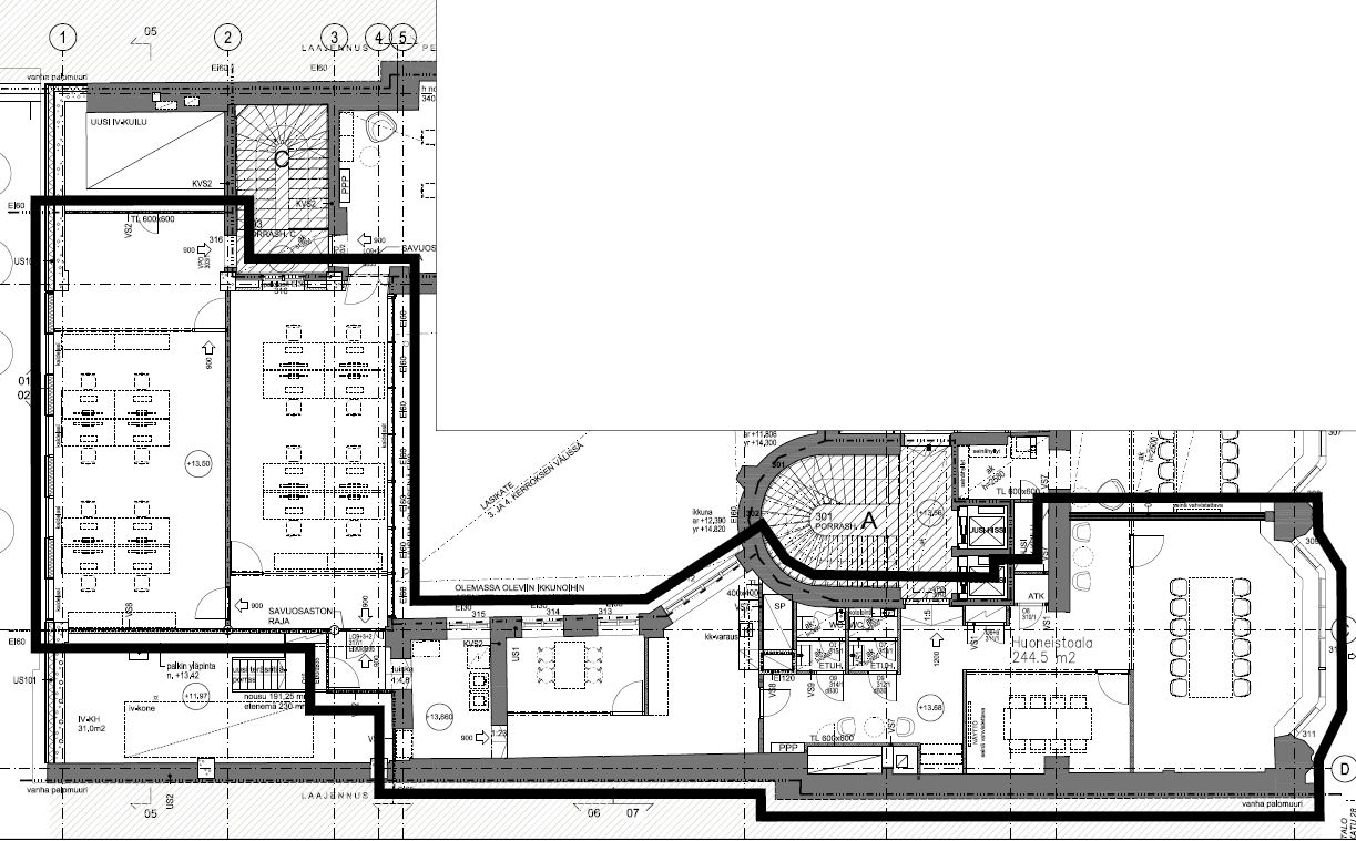
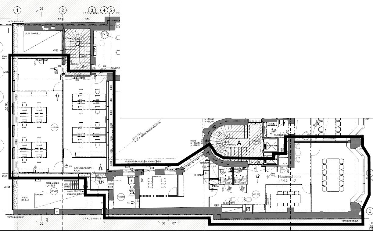
Tyylikkäät toimitilat loistavalla sijainnilla palveluiden äärellä - tätä kaikkea tarjoaa Wuorion talo. Tästä tilasta löytyy kaksi hyvän kokoista toimistotilaa, toinen 60 m2 ja toinen 40 m2. Lisäksi on iso, 12 hengen neuvotteluhuone, pienempi 6 hengen neuvotteluhuone, erillinen hiljaisen työn huone sekä keittiö ja 2 x wc. Tiloista aukeaa hurmaavat näkymät Torikortteleille ja Tuomiokirkolle päin. Kiinteistön kivijalasta löydät hyviä ravintoloita sekä viinibaarin, johon on mukava piipahtaa työpäivän jälkeen.
Alunperin asuinkäyttöön rakennettu talo heräsi todella henkiin koristemaalaaja Salomo Wuorion toimeenpaneman ja arkkitehti Herman Geselliuksen toteuttaman modernisoinnin myötä. 1913 valmistuneen remontin jälkeen rakennuksen nimeksi vakiintui Wuorion liikepalatsi. Salomo Wuorion oma tapetti- ja mattoliike toimi rakennuksessa lähes 70 vuotta. 1930-luvulta lähtien liikepalatsin alakerrassa sijaitsi myös englantilaiseleganssistaan tunnettu The English Tearoom.
Wuorion talo on poikkeuksellisen kerroksellinen: vuosien varrella sitä on muokattu useaan otteeseen vastaamaan aikansa ja käyttäjiensä tarpeita.
