Vuokrataan - Kaarina
Konemestarinkatu 6, Ladjakoski, 20780 Kaarina #10826006
Hyväkuntoinen toimistokiinteistö Kaarinassa Krossin vilkkaalla liike- ja teollisuusalueella.
Tämä tilava toimistokiinteistö sijaitsee Ladjakosken alueella Kaarinassa, osoitteessa Konemestarinkatu 6. Kiinteistö on rakennettu vuonna 1998 ja sen kunto on hyvä, joten se tarjoaa erinomaiset puitteet yrityksesi toiminnalle.
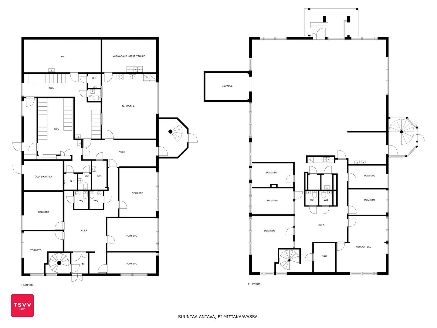
Toimistokiinteistö on kahdessa kerroksessa, ja sen ensimmäisessä kerroksessa on tilaa monipuolisille työtilaratkaisuille. Lämmitysjärjestelmänä toimii öljylämmitys, ja koneellinen ilmanvaihto lämmöntalteenotolla varmistaa miellyttävän työympäristön. Erillinen jäähdytysilmanvaihto ei ole tällä hetkellä toimintakunnossa, mutta sen korjausmahdollisuudet ovat olemassa.
Kiinteistön tontti on laaja, ja sen pinta-ala on noin 2371 neliömetriä, mikä tarjoaa runsaasti tilaa yrityksesi tarpeisiin. Katto on harjakatto, ja katemateriaalina on käytetty peltiä, mikä takaa kestävyyden ja vähäisen huoltotarpeen.
Sisätiloissa on kuusi WC:tä, jotka on varustettu kaikilla tarvittavilla mukavuuksilla, kuten bideesuihkuilla ja peilikaapeilla. Keittiö on hyvin varusteltu, ja sieltä löytyy jääkaappi-pakastin, liesi, astianpesukone ja uuni, mikä tekee taukojen viettämisestä mukavaa.
Kiinteistössä on mahdollisuus ostaa myös siellä olevat kalusteet, mikä helpottaa muuttoa ja toiminnan aloittamista. Kiinteistö on heti vapaana, ja tiloista kaksi huonetta on vuokrattuna ulkopuoliselle vuokralaiselle, mikä voi tuoda lisätuloja.
Ladjakosken alue on rauhallinen ja sijaitsee lähellä Kaarinan keskustaa, mikä tekee siitä loistavan paikan yritykselle, joka arvostaa hyviä kulkuyhteyksiä ja palveluiden läheisyyttä.
1. kerroksesta löytyy kolme sisäänkäyntiä, viisi toimistohuonetta, neljä wc:tä, kaksi suihkua ja keittiötilat
Palvelumme on tilahakijalle maksutos !
Esittelyt ja lisätiedot:
Jouko Reijonen,
0400570098
jouko.reijonen@tsvv.fi
