Vuokrataan toimistotilat - TURKU
Olavintie 2, Keskusta, 20100 TURKU #10825927
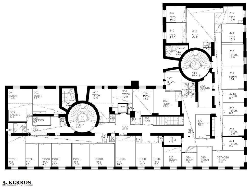
Vuokrataan toimistotilaa n. 700m²
Tilat 3. kerroksesta ja tarvittaessa kerros voidaan myös jakaa esimerkiksi kahteen n. 350m² osaan. Kolme erillistä hissiä, joista yksi on esteetön hissi . Esteetön hissi sijaitsee kiinteistön keskellä ja siihen on suora käynti pääovesta.Myös parkkipaikkoja vuokrattavissa parkkihallista sekä kiinteistön pihalta.
Tiedustelut ja esittelyt Jouko Reijonen 0400 570098 jouko.reijonen@tsvv.fi
Osoite
Olavintie 2, 20100 TURKU
Tilatyyppi
Toimistotilaa
700 m2
Vapautuu
Kysy
Kerros
3
Ota yhteyttä
Pyydä lisätietoa
