Vuokrataan tuotantotilat - Raisio
Sitomokuja 6, Hauninen, 21200 Raisio #10825869
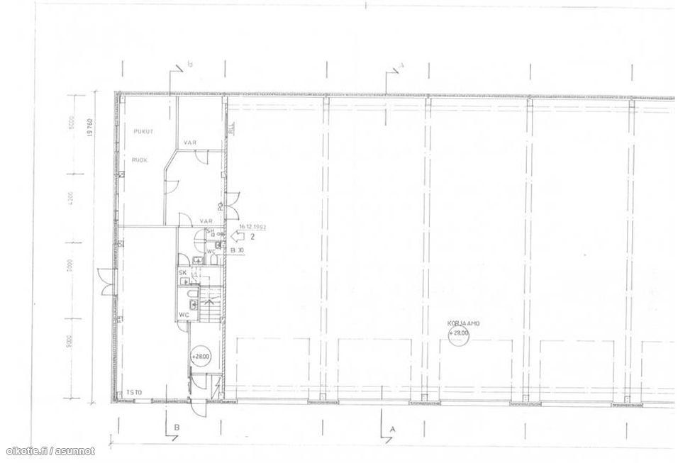
Tilassa 2 erillistä korkeaa hallia + toimistotiloja
Vuokrattavana tilava toimitila Raision Haunisen alueella, osoitteessa Sitomokuja 6. Tämä 620 neliömetrin tila tarjoaa erinomaiset puitteet monenlaiseen tuotantotoimintaan. Tilava ja hyvin suunniteltu tila mahdollistaa tehokkaan työskentelyn sekä tuotantoprosessien sujuvuuden.
Tehdas sijaitsee lähellä Raision keskustaa, mikä takaa hyvät kulkuyhteydet ja palveluiden läheisyyden. Hauninen on rauhallinen ja viihtyisä alue, joka tarjoaa yrityksille erinomaiset puitteet toiminnan harjoittamiseen.
Tartu tilaisuuteen hankkia tämä monipuolinen tehdastila ja luoda yrityksellesi toimiva ja tehokas työympäristö. Lisätiedot ja tarkemmat tiedot löytyvät liitteenä olevasta dokumentista.
Hallitilaa 370m² ja se jakautuu kahteen halliin 120m² ( erikseen vuokrattuna 1050€ alv. 0 % ) ja 250m², sekä toimistoa 250m²
Korkeat isot nosto-ovet ja Iso piha-alue
Vapautuu sopimuksen mukaan
Palvelumme on tilahakijalle maksuton !
Tiedustelut ja esittelyt Jouko Reijonen 0400 570098 jouko.reijonen@tsvv.fi
