Vuokrataan toimistotilat - Jyväskylä
Kivääritehtaankatu 6, 40100 Jyväskylä #10825844
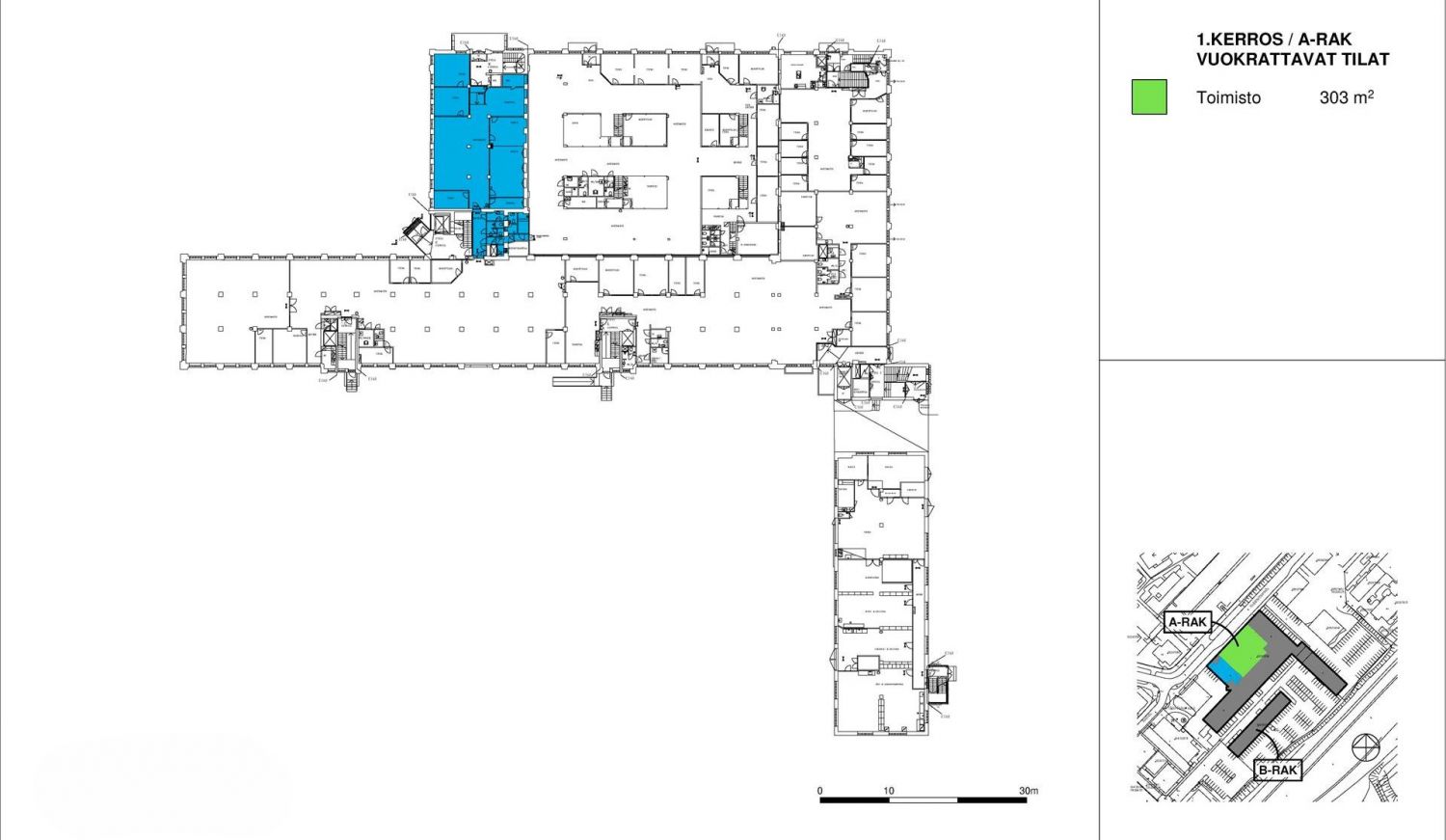
Nykyaikainen ja jäähdytetty toimistotila talon ylimmässä ullakkokerroksessa. Upea ja uniikki ilme, mitä tehostaa vaihteleva huonekorkeus persoonallisen harjakaton ja kattoikkunoiden ansiosta. Tilassa oma keittiö- ja wc-tilat. Heti vapaa.
Kivääritehdas sijaitsee Tourulassa, nelostien ja Vaajakosken moottoritien kainalossa, vain muutaman minuutin ajomatkan päässä Jyväskylän ydinkeskustasta. Tourulaan on helppo tulla joka puolelta kaupunkia, ja pysäköintitilaa riittää. Tourulasta pääsee nopeasti keskustaan, kauppakeskus Seppään ja Kankaan alueelle.
Tämän kohteen omistaa Logicor Oy.
Lisätietoja 020 7290 710. Lisää kohteita www.premises.fi.
Kohteella ei ole lain edellyttämää energiatodistusta.Kerros: 1
CRE PREMISES
Puh. Näytä puhelinnumero 020 7290 710
Vantaankoskentie 14
01670 VANTAA
