Vuokrataan toimistotilat - Jyväskylä
Kivääritehtaankatu 6, 40100 Jyväskylä #10825842
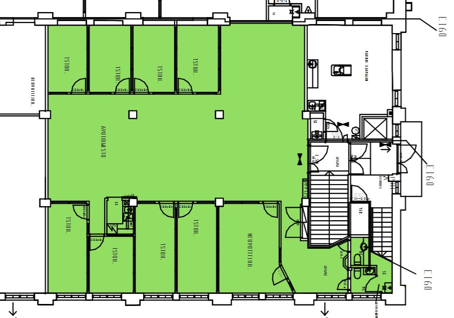
Siistiä, katutasossa olevaa nykyaikaista jäähdytettyä toimistotilaa. Korkea huonekorkeus. Tilassa oma keittiö ja wc-tilat. Sisäänkäynti Kivääritehtaankadulta.
Kivääritehdas on vetovoimainen yrityspuisto historiallisessa ympäristössä. Vuonna 1927 valmistunut Valtion Kivääritehdas on osa suomalaista historiaa. Alun perin puolustuslaitoksemme tarpeisiin perustettu tehdas on modernisoitu vastaamaan nykyajan käyttäjän toiveita aina toimistotiloista tuotannon vaativiin tarpeisiin. Alueen arvokkuuden säilyttämiseksi on kulttuurihistoriallisesti merkittävät rakennukset määrätty suojelukohteeksi.
Tämän kohteen omistaa Logicor Oy.
Lisätietoja 020 7290 710. Lisää kohteita www.premises.fi
Kohteella ei ole lain edellyttämää energiatodistusta.Kerros: 1
CRE PREMISES
Puh. Näytä puhelinnumero 020 7290 710
Vantaankoskentie 14
01670 VANTAA
