Vuokrataan toimistotilat, näyttelytilat - Jyväskylä
Ahjokatu 14, 40320 Jyväskylä #10825836
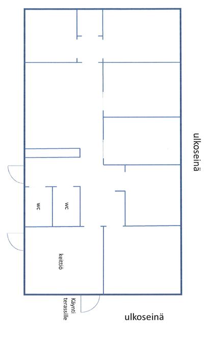
Vuokrattavana siistiä toimistotilaa Jyvästkylä Seppälän alueella Ahjokatu 14:ssa 141 m2.
Kiinteistö sijaitsee näkyvällä paikalla Seppälässä, vilkkaasti liikennöidyn Ahjokadun varrella, uudistetun Prisman ja Kauppakeskus Sepän läheisyydessä. Pihalla on pysäköintipaikkoja asiakkaiden ja henkilökunnan käyttöön.
Tilassa 5-6 tstohuoneetta 2 wc:tä sekä keittiötila. Ilmalämpöpumppu toimii viilennyksenä kesäaikaan. Keittiöstä käynti yhteiselle terassille.
Lisätietoa: p. 045 261 6555/Mika
Kohteella ei ole lain edellyttämää energiatodistusta ja sen vuoksi energialuokka ei ole tiedossa.Kerros: 2
CRE PREMISES
Puh. Näytä puhelinnumero 020 7290 710
Vantaankoskentie 14
01670 VANTAA
