Vuokrataan toimistotilat - Helsinki
Antinkatu 1, Kamppi, 00100 Helsinki #10825791
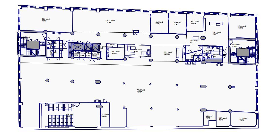
Vuokrataan 3. kerroksen toimistotila huippusijainnilla Kampin kattavien palveluiden äärellä. Tehokas pohjaratkaisu mahdollistaa joustavat tilaratkaisut vuokralaisen tarpeen mukaan. Mahdollista myös vuokrata kaksi päällekkäistä kerrosta, jolloin neliöitä on yhteensä 2610.
Antinkadun kiinteistö on rakennettu 1952, ja se on siitä lähtien toiminut monien eri toimijoiden toimistokiinteistönä.
Antinkadun kiinteistöä kehitetään vuonna 2016 merkittävästi, ja kiinteistöön haetaan uusia vuokralaisia. Ensimmäisen kerroksen tilat mahdollistavat mm. ravintolatoiminnan.
Lisätietoja 020 7290 710. Lisää kohteita osoitteesta www.premises.fi
Kohteella ei ole lain edellyttämää energiatodistusta.Kerros: 3
CRE PREMISES
Puh. Näytä puhelinnumero 020 7290 710
Vantaankoskentie 14
01670 VANTAA
