Vuokrataan toimistotilat - Oulu
Kasarmintie 15, Intiö, 90130 Oulu #10825293
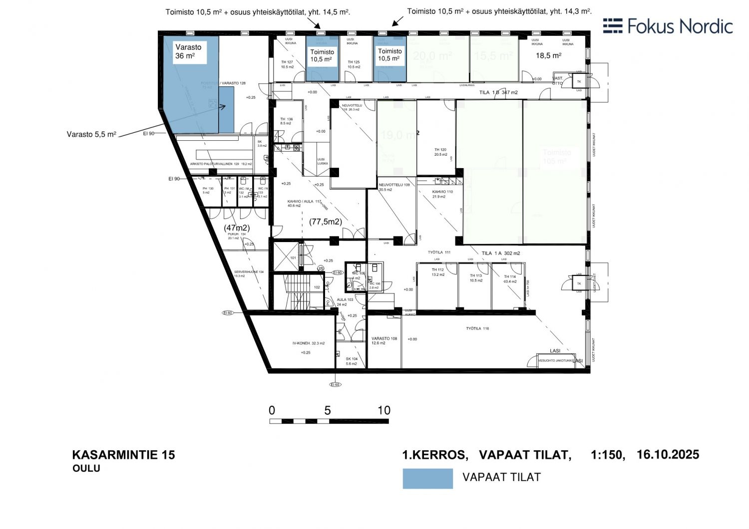
Vuokrataan upealta sijainnilta 10,5 m²:n toimistotila. Yhteiskäyttöiset sosiaalitilat. Vapaa!
Parkkipaikkoja vuokrattavissa piha-alueelta sekä varastotiloja 1 krs:sta.
Soita Kirsi Väisänen p. 050...
Osoite
Kasarmintie 15, 90130 Oulu
Tilatyyppi
Toimistotilaa
10,5 m2
Kiinteistö
Uniikkia toimistotilaa Oulusta !
Vapaata toimistotilaa vuokrattavana keskusta-alueella Oulujoen rannalla uniikissa vuonna 1926 valmistuneessa kuusikerroksisessa toimistorakennuksessa. Rakennus on saneerattu toimistokäyttöön vuonna 2005. Kohteen kokonaisala on 3069 m2.
Uniikki rakennus sekä sijainti lähellä keskustaa Oulujoen rannalla tekevät kohteesta mielenkiintoisen ja hyvät näköalat luovat osaltaan miellyttävää työympäristöä.
Rakennuksessa on koneellinen ilmanvaihto. Osassa toimistoti...
Vapaata toimistotilaa vuokrattavana keskusta-alueella Oulujoen rannalla uniikissa vuonna 1926 valmistuneessa kuusikerroksisessa toimistorakennuksessa. Rakennus on saneerattu toimistokäyttöön vuonna 2005. Kohteen kokonaisala on 3069 m2.
Uniikki rakennus sekä sijainti lähellä keskustaa Oulujoen rannalla tekevät kohteesta mielenkiintoisen ja hyvät näköalat luovat osaltaan miellyttävää työympäristöä.
Rakennuksessa on koneellinen ilmanvaihto. Osassa toimistoti...
Sijainti
Kiinteistö sijaitsee 1.5 km pohjoiseen Oulun ydinkeskustasta Oulujoen etelärannalla osoitteessa Kasarmintie 15. Lentokenttä sijaitsee n. 16 km päässä ja rautatieasema on n. 1.5 km päässä kiinteistöstä.
Pysäköinti
Parkkipaikkoja vuokrattavissa piha-alueelta.
Muuta
Vuokrataan upealta sijainnilta 10,5 m²:n toimistotila. Yhteiskäyttöiset sosiaalitilat. Vapaa!
Parkkipaikkoja vuokrattavissa piha-alueelta sekä varastotiloja 1 krs:sta.
Soita Kirsi Väisänen p. 050 549 5101 ja kysy lisätietoja!
Katso lisätiedot
Parkkipaikkoja vuokrattavissa piha-alueelta sekä varastotiloja 1 krs:sta.
Soita Kirsi Väisänen p. 050 549 5101 ja kysy lisätietoja!
Katso lisätiedot
Vapautuu
Kysy
Rakennusvuosi
1926
Energiatehokkuusluokka
D
Ota yhteyttä
Fokus Nordic Finland Oy
Näytä puhelinnumero
+358 50 549 5101
Kirsi Väisänen
Näytä puhelinnumero
+358 50 549 5101
Näytä puhelinnumero
+358 50 549 5101
Pyydä lisätietoa
