Vuokrataan liiketilat - Helsinki
Simonkatu 9, Keskusta, 00100 Helsinki #10825288
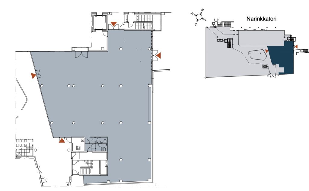
Vuokrattavana liiketilaa Helsingin ydinkeskustassa.
Tämä 425 m² liiketila sijaitsee Simonkentän vilkkaalla kauppakujalla. Kampin ja Forumin kauppakeskusten läheisyys lisäävät kohteen vetovoimaa. Soveltuu hyvin esimerkiksi lääkäriasemalle.
Simonkatu 9 on hotelli- ja liikekiinteistö hyvällä paikalla Helsingin Kampissa. Se on valmistunut vuonna 2000 ja sen tiloja on remontoitu vuoden 2017 aikana. Kiinteistön pääkäyttäjänä toimii Scandic. Alimmat kerrokset ovat liiketilakäytössä. Sisätilojen kautta pääsee myös kävellen suoraan Kampin keskukseen ja Forumiin.
Kysy lisää numerosta 044 723 4700 tai info@bref.fi. Palvelumme on tilanhakijoille ilmainen.
Bureau Real Estate Finland Oy
Lars Sonckin kaari 16, 02600 Espoo
Näytä puhelinnumero
0447234700
Bureau Real Estate Finland Oy
https://www.bref.fi