Vuokrataan toimistotilat - Helsinki
Työpajankatu 9, Kalasatama, 00580 Helsinki #10825282
Modernia toimistotilaa Kalasatamassa, hyvien liikenneyhteyksien varrella.
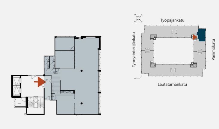
Kyseinen 232,5 m² toimistotila sijaitsee kiinteistön 3. kerroksessa. Toimistossa on avotilaa, muutama huone sekä omat keittiö- ja wc-tilat. Kuvat ovat yleiskuvia kiinteistön tiloista. Osa kuvista on esimerkkejä jo remontoiduista toimistotiloista.
Trooli sijaitsee Sörnäisten rantatien varrella, lyhyen kävelymatkan päässä Kalasataman metroasemasta. Trooli on kolmesta kiinteistöstä muodostuva kokonaisuus, joka tarjoaa vuokralaisille edustavat puitteet sekä hyvät tekniset valmiudet. Kiinteistössä on mm. aulapalvelu, vuokrattavia neuvottelutiloja, lounasravintola, kahvila, pyöräparkki ja autohalli sekä kuntosali sosiaalitiloineen.
Troolilla on erinomainen sijainti monipuolisten palveluiden ympäröimänä. Kauppakeskus REDI sijaitsee kävelyetäisyydellä, Teurastamon ravintola- ja tapahtumapalvelut ovat vieressä ja Suvilahden kulttuurikeskittymä on lähellä.
Kysy lisää numerosta 044 723 4700 tai info@bref.fi. Palvelumme on tilanhakijoille ilmainen.
Bureau Real Estate Finland Oy
Lars Sonckin kaari 16, 02600 Espoo
Näytä puhelinnumero
0447234700
Bureau Real Estate Finland Oy
https://www.bref.fi