Vuokrataan toimistotilat - Jyväskylä
Liike- ja toimistotila, Kauppakatu 2, Keskusta, 40100 Jyväskylä #10825278
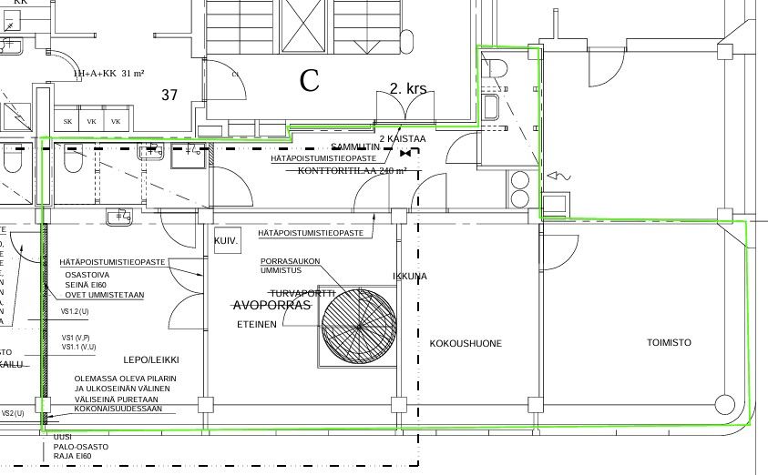
Kauppakadulla 2. kerroksen toimistotilaa
Osoite
Kauppakatu 2, 40100 Jyväskylä
Tilatyyppi
Toimistotilaa
100 m2
Muuta
Vuokrataan Kauppakadulta 2. kerroksen toimistokäyttöön soveltuvaa tilaa n. 100 m2. Hyvä sijainti Kauppakadun ja Vaasankadun kulmauksessa, lähellä yliopistoa. Tilassa kaksi erillistä ja esteetöntä wc:tä. Taloyhtiössä hissi. Soita ja kysy lisätietoja.
Vapautuu
Kysy
Kerros
2
Ota yhteyttä
Infonia Oy
Kauppakatu 18 A, 40100 Jyväskylä
Näytä puhelinnumero
+358503523143
Katja Shemeikka
Pyydä lisätietoa
