Vuokrataan tuotantotilat, varastotilat, autotalli/-hallitilat - Helsinki
Valokaari 10, Suutarila, 00750 Helsinki #10825253
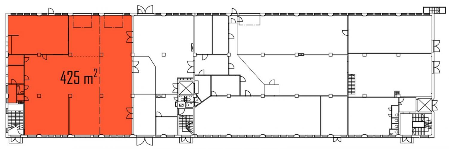
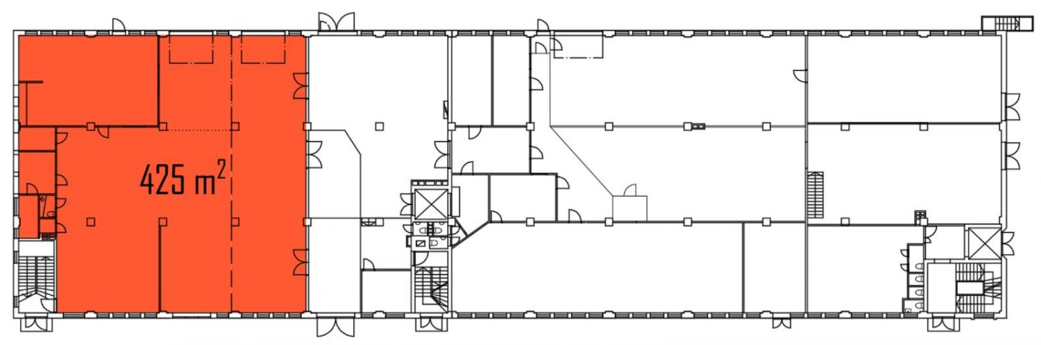
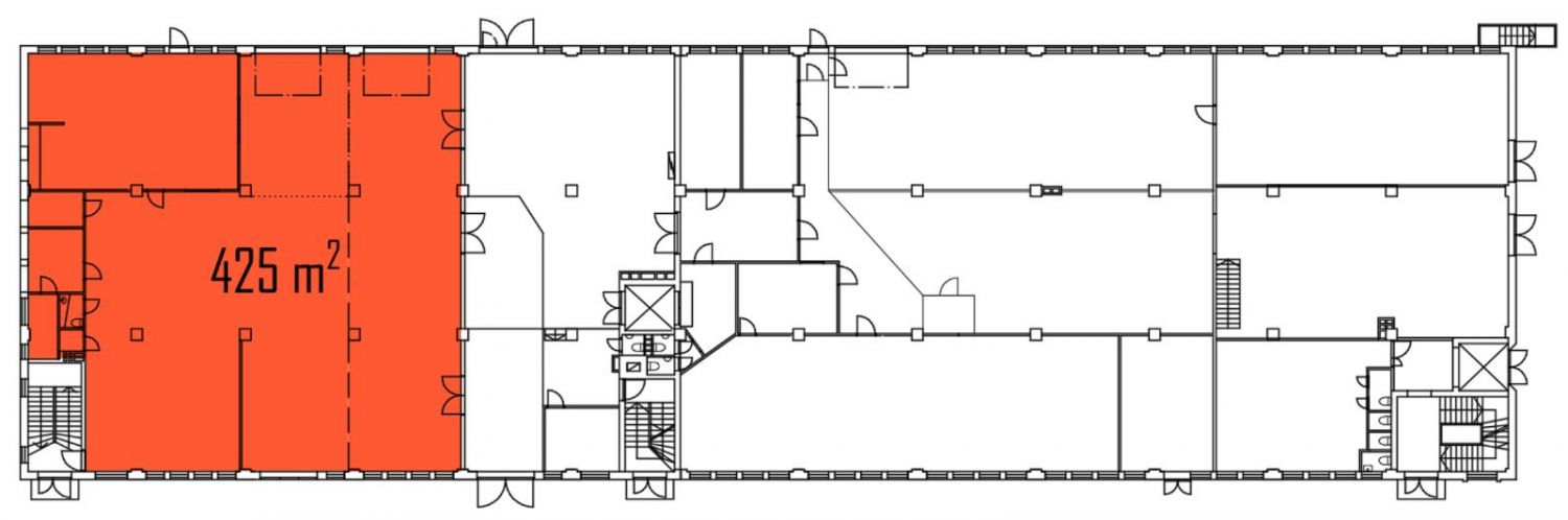
Vuokrataan Helsingin Suutarilasta katutason 425 m² autotalli valmistevarasto rakennuksesta. Tila soveltuu myös varastoksi tai tuotantotilaksi.
Tiloissa on toiminut pitkään autopalvelualan yritys, mutta tila ei sovellu autopesulaksi! Tilan korkeus on noin 3 m ja sinne johtaa pihalta kaksi omaa nosto-ovea (leveys n. 3 m x korkeus 2,3 m) ja taitto-ovi (leveys n. 2,8 m x korkeus 2,6 m). Tilassa on keittiö ja aula tilat.
Pohjapiirrokseen katkoviivalla merkitty kevyt väliseinä ei näy kuvissa. Se voidaan purkaa tarvittaessa.
Kysy rohkeasti lisätietoja ja sovitaan käynti kohteella jo tänään!
Hausala Oy
Erkkilänkatu 11, 33100 Tampere
Näytä puhelinnumero
050 472 7077
Matti Pöyhiä
Näytä puhelinnumero
040 722 6650
Mika Savikko
Näytä puhelinnumero
050 472 7077
