Vuokrataan toimistotilat - Espoo
Tarvonsalmenkatu 15, Perkkaa, 02600 Espoo #10825246
Siistiä toimistotilaa Espoosta
Osoite
Tarvonsalmenkatu 15, 02600 Espoo
Tilatyyppi
Toimistotilaa
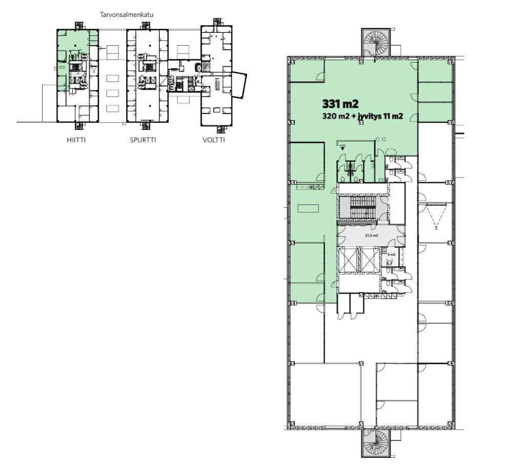
331 m2
Muuta
Vuokrattavana 331 m² toimistotilaa Espoossa.
Toimisto sijaitsee rakennuksen kuudennessa kerroksessa ja on heti vapaa käyttöön.
Sijainti tarjoaa hyvät liikenneyhteydet ja saavutettavuuden, mikä tekee tilasta erinomaisen vaihtoehdon yritystoimintaan.
Vuonna 2013 valmistuneet toimitilat ovat nykyaikaiset ja viihtyisät. Ikkunoista avautuvat merinäkymät tuovat työpäivään valoa ja avaruutta. Pohjoisen puolelta tilaan avautuu näkymä kaupungin vehreälle virkistysalueelle, joka tuo luonnon lähelle työympäristöä.
Tervetuloa tutustumaan, varaathan välittäjältä oman esittelyaikasi. Voit kysyä meiltä myös muita sopivia vaihtoehtoja, kauttamme löydät juuri Teidän tarpeisiinne sopivat tilat.
Palvelumme on tilanhakijalle veloitukseton!
Toimisto sijaitsee rakennuksen kuudennessa kerroksessa ja on heti vapaa käyttöön.
Sijainti tarjoaa hyvät liikenneyhteydet ja saavutettavuuden, mikä tekee tilasta erinomaisen vaihtoehdon yritystoimintaan.
Vuonna 2013 valmistuneet toimitilat ovat nykyaikaiset ja viihtyisät. Ikkunoista avautuvat merinäkymät tuovat työpäivään valoa ja avaruutta. Pohjoisen puolelta tilaan avautuu näkymä kaupungin vehreälle virkistysalueelle, joka tuo luonnon lähelle työympäristöä.
Tervetuloa tutustumaan, varaathan välittäjältä oman esittelyaikasi. Voit kysyä meiltä myös muita sopivia vaihtoehtoja, kauttamme löydät juuri Teidän tarpeisiinne sopivat tilat.
Palvelumme on tilanhakijalle veloitukseton!
Vapautuu
Kysy
Kerros
6
Ota yhteyttä
Tuloskiinteistöt Oy
Rikhardinkatu 2 B 5, 00130 Helsinki
Näytä puhelinnumero
(09) 6841 620
Nina Meyke
Commercial Real Estate Advisor
Näytä puhelinnumero
+358 50 466 1519
Otto Ahtola
Commercial Real Estate Advisor
Näytä puhelinnumero
+358 40 042 2830
Pyydä lisätietoa
