Vuokrataan toimistotilat - Helsinki
Ruosilantie 14, Konala, 00390 Helsinki #10825239
Edullista toimistotilaa ja myös varastotilaa Konalassa
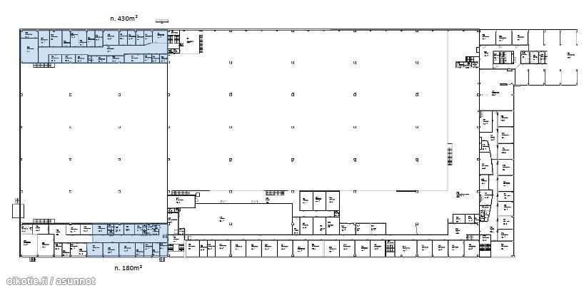
Kiinteistöstä on mahdollisuus vuokrata toimistoja, esimerkiksi 430m2 2krs.
Toisen kerroksen rauhallista toimistoa Ruosilantien maisemilla. Toimitilat tällä hetkellä jaettu huoneisiin mutta mahdollisuus muuntaa avotilaksi tarvittaessa
Kiiinteistössä on oma lounasravintola, sosiaalitilat ja laaja parkkialue. Kiinteistö sijaitsee Vihdintien välittömässä läheisyydessä ja kehä I:n helposti saavutettavissa. Konalaan hyvät bussiyhteydet ja Malminkartanon juna-asema sijaitsee 1,3 km päässä. Ruosilantie 14 on vuonna 1971 rakennettu ja v. 2000-2001 peruskorjattu varasto- ja toimistokiinteistö. Se sijaitsee loistavalla paikalla Konalassa sen ytimessä. Tilat ovat muunneltavissa moneen käyttötarkoitukseen.
Kiinteistön aidatulla pihalla on runsaasti parkkitilaa.
Kiinteistössä on lounasravintola, saunaosasto ja sosiaalitilat. Mahdollisuus vuokrata varastotilaa pohjakerroksen lastauslaiturin läheisyydestä. Pihalta mahdollista varata kylmiä/sähkötolpallisia autopaikkoja. Iso piha, lastauslaituri ja -taskut. Tonttialue on aidattu ja vartioitu.
Sijainti: Ruosilantie 14, 00390 Helsinki
Kaupunginosa: Konala
Kerros: 2
Toimitilan tyyppi: Toimisto
Pinta-ala: 180 m² ja 350m2
Kuvaus: Monitilatoimisto.
Kysy lisätietoja kohteesta:
Kaartinen Pentti
050 337 8148
pentti.kaartinen@toimitilapalvelu.com
Toffer Aarno
0449781393
aarno.toffer@toimitilapalvelu.com
Toimitilapalvelu FNTC LKV
Kaartinen Pentti
Näytä puhelinnumero
050 337 8148
pentti.kaartinen@toimitilapalvelu.com
Toffer Aarno
Näytä puhelinnumero
0449781393
aarno.toffer@toimitilapalvelu.com
