Vuokrataan tuotantotilat, varastotilat - Orimattila
Kaitilantie 30, 16300 Orimattila #10825238
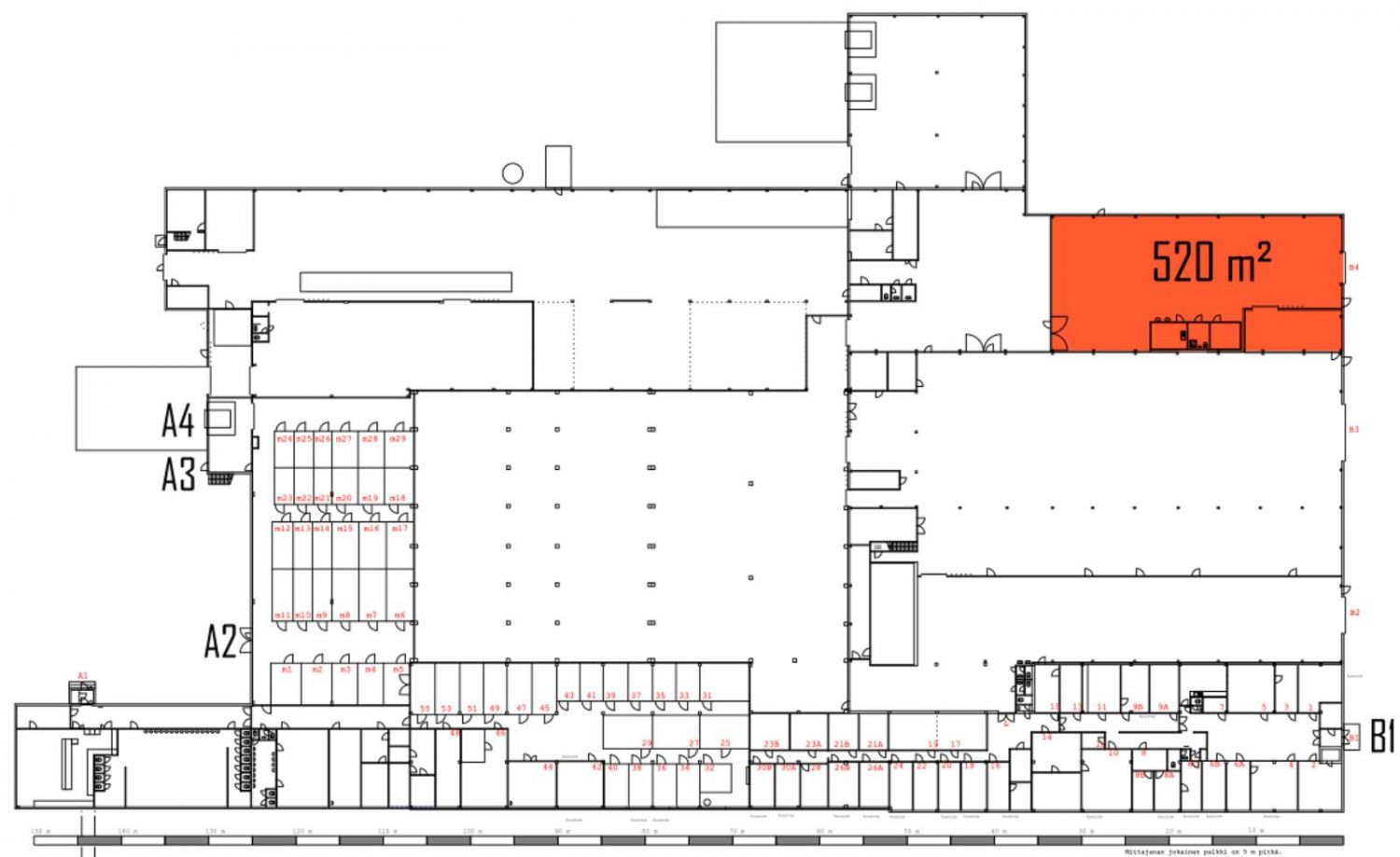
Vuokrataan Orimattilasta katutason 520 m² tuotanto- tai varastotila.
Tilassa 3,6 m leveä ja 4,17 m korkea nosto-ovi. Varastohallin korkeus on 5,6 m kattopalkkiin asti. Laaja halli, jossa erillinen n. 50 m²:n kokoinen tila varastoksi tms. Lisäksi pieni toimisto, keittiö ja wc.
Kysy rohkeasti lisätietoja ja sovitaan käynti kohteella jo tänään!
Osoite
Kaitilantie 30, 16300 Orimattila
Tilatyyppi
Tuotantotilaa
520 m2
Varastotilaa
520 m2
Yhteensä
520 m2
Kiinteistö
Kaitilantie 30
Vapautuu
Kysy
Ota yhteyttä
Hausala Oy
Erkkilänkatu 11, 33100 Tampere
Näytä puhelinnumero
050 472 7077
Tero Ala-Hannula
Näytä puhelinnumero
040 508 1351
Mika Savikko
Näytä puhelinnumero
050 472 7077
Pyydä lisätietoa
