Vuokrataan tuotantotilat, varastotilat - Orimattila
Kaitilantie 30, 16300 Orimattila #10825234
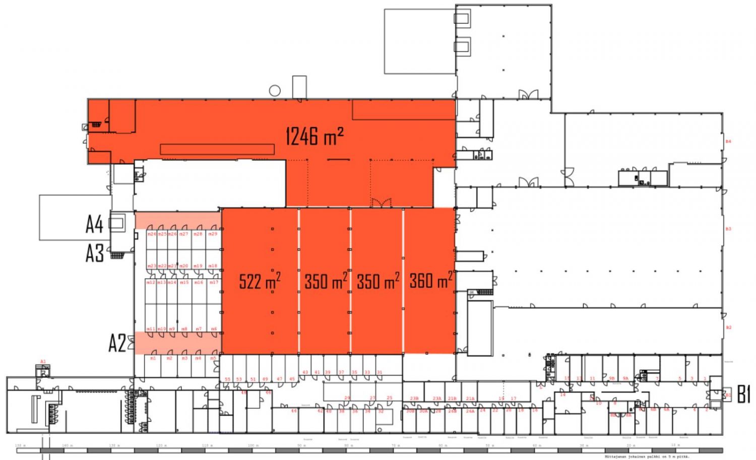
Vuokrataan Orimattilasta katutason 2 828 m² tuotanto- tai varastotila.
Tilaan on lastauslaituriyhteys sekä sisäänajomahdollisuus isosta nosto-ovesta (aukko n. L 3,5 m x K 4,0 m). Korkeus on n. 7 m. Tiloissa on sprinklerjärjestelmä. Tiloista 1246 m² osa on puolilämmintä tilaa. Vuokra sisältää peruslämmön sähkön ja veden.
Kysy rohkeasti lisätietoja ja sovitaan käynti kohteella!
Osoite
Kaitilantie 30, 16300 Orimattila
Tilatyyppi
Tuotantotilaa
2828 m2
Varastotilaa
2828 m2
Yhteensä
2828 m2
Vuokra
14000 €/kk
Kiinteistö
Kaitilantie 30
Vapautuu
Kysy
Ota yhteyttä
Hausala Oy
Erkkilänkatu 11, 33100 Tampere
Näytä puhelinnumero
050 472 7077
Tero Ala-Hannula
Näytä puhelinnumero
040 508 1351
Mika Savikko
Näytä puhelinnumero
050 472 7077
Pyydä lisätietoa
