Vuokrataan toimistotilat - Espoo
Ruukinkuja 4, Kivenlahti, 02330 Espoo #10825232
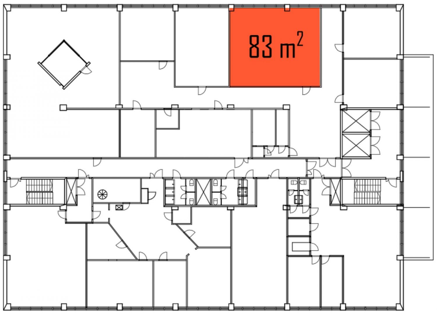
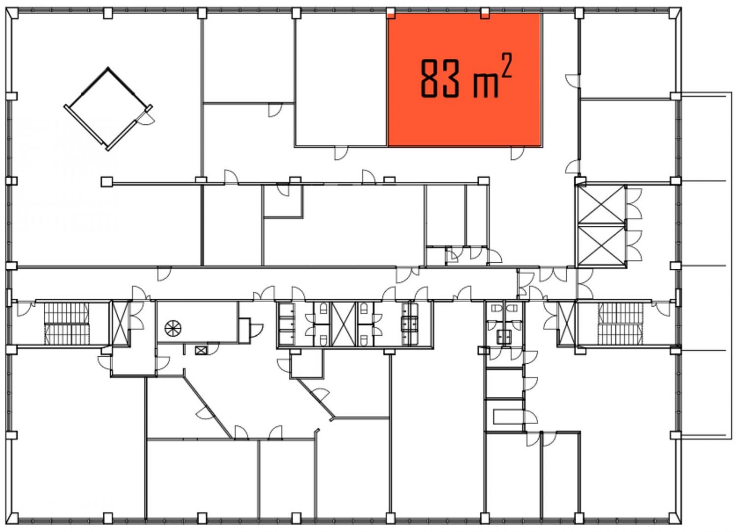
Vuokrataan Espoon Kivenlahdesta toisen kerroksen 83 m² toimisto-, esittely-/varastotila.
Tila on siisti ja hyväkuntoinen. Keittiö ja wc tilat ovat yhteiskäyttöisiä muiden vuokralaisten kanssa.
Siisti ja hyväkuntoinen toimitilakiinteistö kehittyvällä alueella Espoon Kiviruukissa (Kivenlahden teollisuusalue) on valmistunut 1980-luvulla. Kiviruukkiin on hyvät kulkuyhteydet: se sijaitsee aivan Länsiväylän kupeessa Kehä III:n sisäpuolella. Kiinteistö sijaitsee uuden Kivenlahden metroaseman läheisyydessä, kävelymatka kestää vain kymmenisen minuuttia. Tavarahissit kulkevat kerroksiin 1-3. Pihalla on 60 autopaikkaa.
Kysy rohkeasti lisätietoja ja sovitaan käynti kohteella jo tänään!
Hausala Oy
Erkkilänkatu 11, 33100 Tampere
Näytä puhelinnumero
050 472 7077
Mikko Ranta
Näytä puhelinnumero
050 360 6500
Mika Savikko
Näytä puhelinnumero
050 472 7077
