Vuokrataan varastotilat - Espoo
Sierakiventie 8-10, Kauklahti, 02780 Espoo #10825230
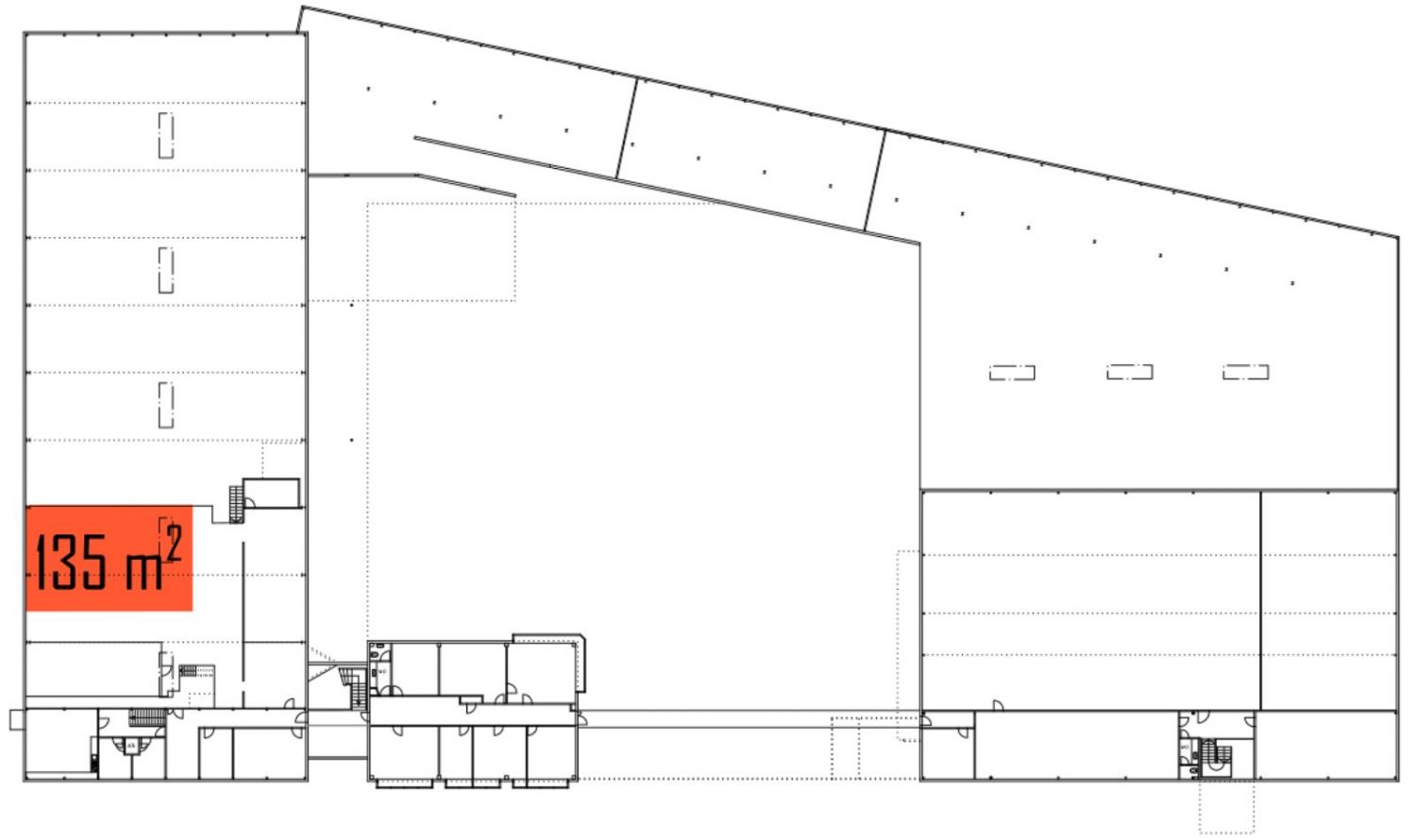
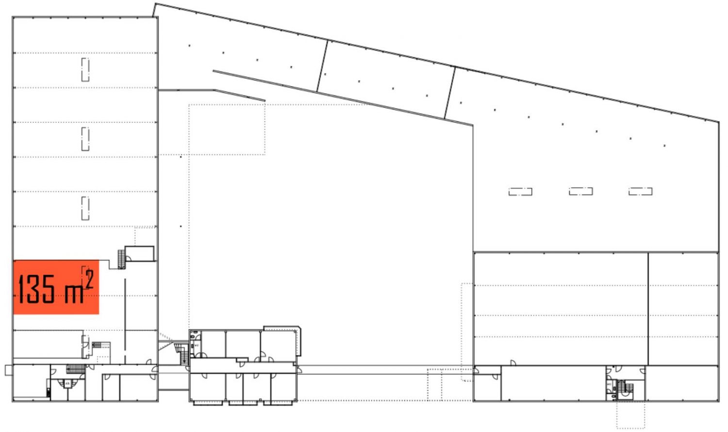
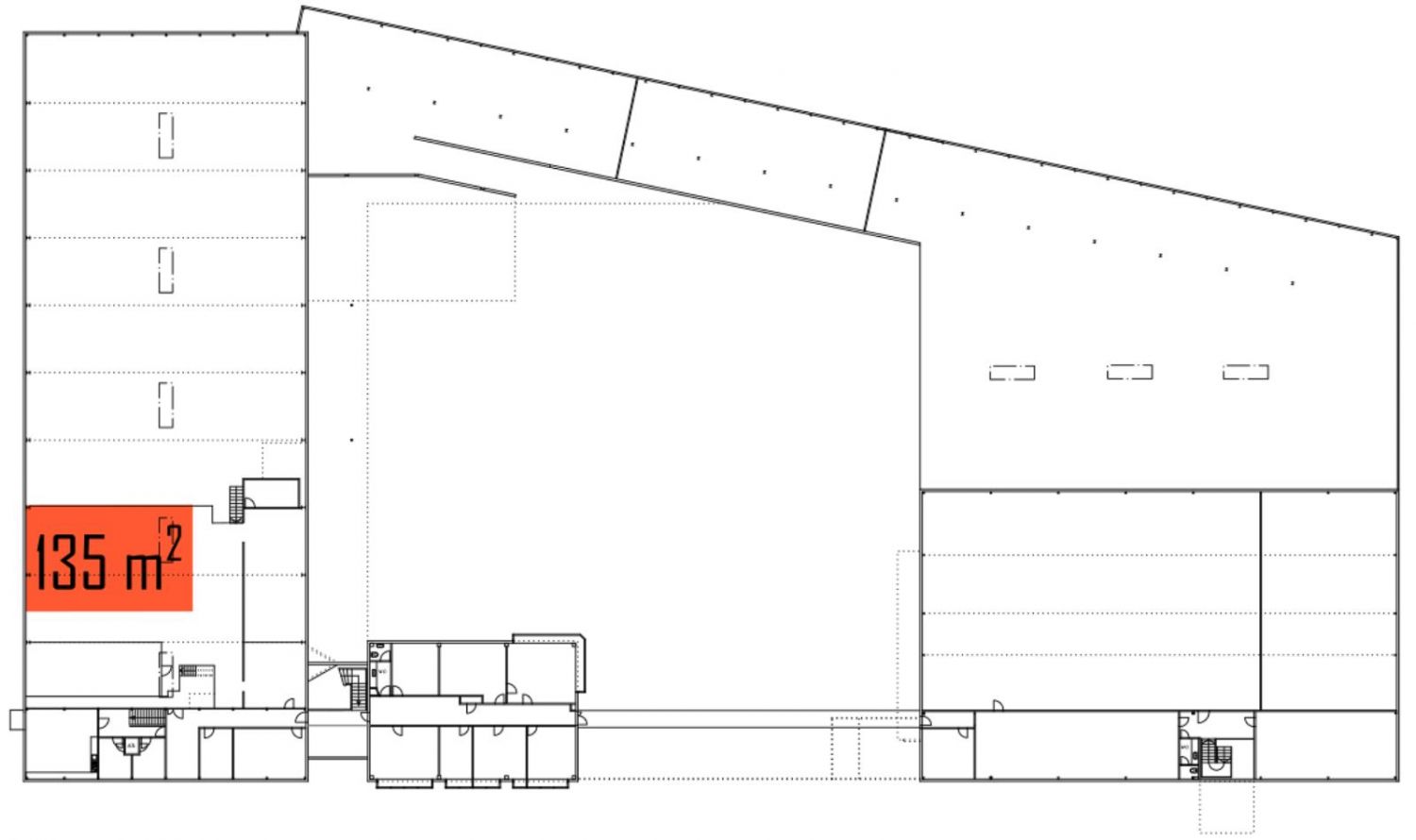
Vuokrataan Espoon Kauklahdesta toisen kerroksen 135 m² hyllyvarastotilasta max. 102 m² osuus, pienimmillään 50 m² osuus.
Varastotila soveltuu esim. pientavaroiden varastointiin. Hyllytilaa on runsaasti käytössä, mutta hyllyt voi myös purkaa tarvittaessa pois.
Kysy rohkeasti lisätietoja ja sovitaan käynti kohteella jo tänään!
Osoite
Sierakiventie 8-10, 02780 Espoo
Tilatyyppi
Varastotilaa
50 - 102 m2
Kiinteistö
Sierakiventie 8-10
Vapautuu
Kysy
Ota yhteyttä
Hausala Oy
Erkkilänkatu 11, 33100 Tampere
Näytä puhelinnumero
050 472 7077
Mikko Ranta
Näytä puhelinnumero
050 360 6500
Mika Savikko
Näytä puhelinnumero
050 472 7077
Pyydä lisätietoa
