Vuokrataan toimistotilat - Helsinki
Fredrikinkatu 48, Kamppi, 00100 Helsinki #10825199
Tehokasta poääkonttoritason toimitotilaa 1744m2 Kampissa hyvät yhteydet
Tilat isommallekin yritykselle joka haluaa sijoittua keskelle Kamppia!
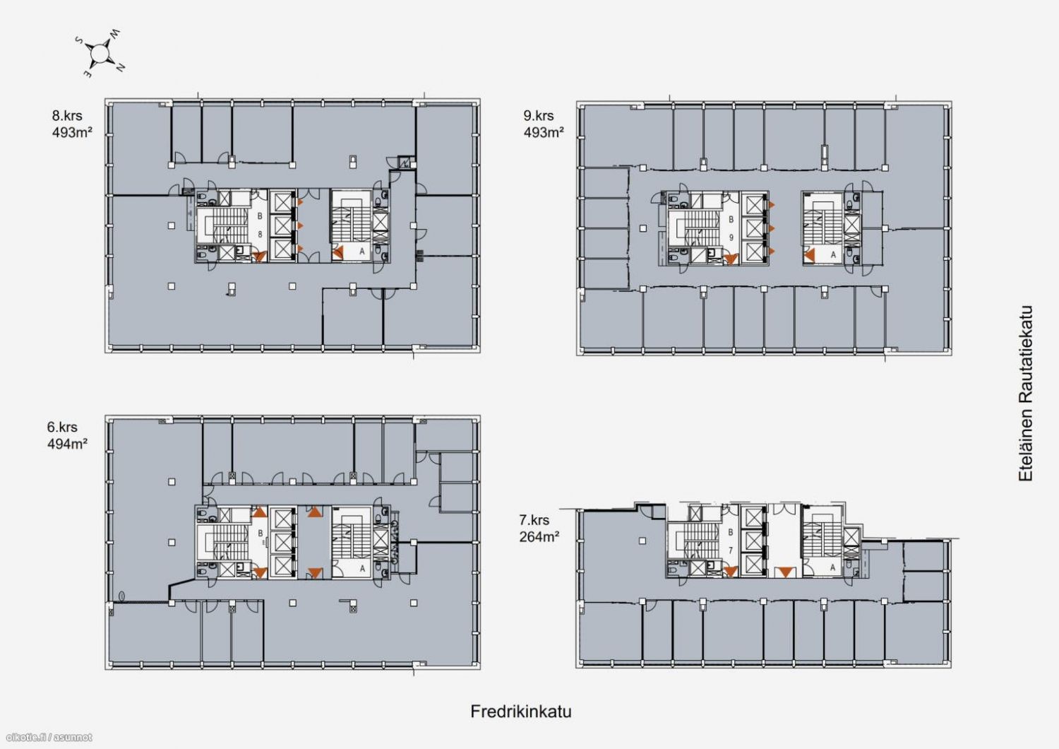
Kerrokset 6.-9. vapautumassa, yhteensä neliöitä noin 1744 näkymät upeat ja tilat muuntojoustavia.
Toimistokiinteistö on valmistunut perinteikkääseen Autotalokortteliin vuonna 1962. Kiinteistö on käynyt läpi perusteellisen korjaushankkeen, jossa sen toimitiloja on avarrettu ja tehty avotiloiksi soveltuviksi. Rakennuksessa on 12 kerrosta. Kiinteistössä on katutasossa monipuolista liiketilaa. Ylemmissä kerroksissa on valoisaa, muuntojoustavaa toimistotilaa ja neuvottelutiloja. Autopaikat sijaitsevat hallissa, jonne on suora hissiyhteys toimistokerroksista. Autotalokortteli on käynyt läpi perusteellisen peruskorjauksen ja parannushankkeen, jossa tiloja on avarrettu ja tehty niistä käyttäjilleen avoimempia. Kampin autotalokortteli sijaitsee näkyvällä paikalla Kampin kauppakeskuksen vieressä. Kohteeseen on erinomaiset julkiset kulkuyhteydet metrolla, raitiovaunulla ja busseilla. Yksityisautoille on maanalaista pysäköintitilaa korttelin omassa autohallissa. Pyöräilijöille on pyöräparkki.
Vuokrattavissa 6 kerroksen moderni toimisto. Tila remontoidaan tarvittaessa asiakkaan näköiseksi. Kampin keskus palveluineen sekä metroasema ja bussiliikenneterminaali ovat lähellä.
Tilan ominaisuudet: tilassa on ilmastointi, avo-/kombitoimisto
Käyntiosoite: Fredrikinkatu 48, Kamppi, 00100 HELSINKI
Tilatyyppi: Toimisto
Tinta-ala: 1744 m²
Kerros: 6-9.
Energialuokka: F2007
Vapautuminen: Vapautumssa 50-100 hengelle tilat
Pysäköinti: Kiinteistössä on oma pysäköintihalli, toimistokerroksista on hissiyhteys autohalliin,
Kiinteistön palveluita ovat, kuntosali, pukuhuone, pyöräparkki, suihkutila,
Kysy lisää:
Harry Juselius, KTM, LKV, KJs
+358-400-208419
harry.juselius@toimitilapalvelu.com
Pentti Kaartinen, Ekonomi
+358-50-337 8148
pentti.kaartinen@toimitilapalvelu.com
Aarno Toffer, Merkonomi
+358-44 978 1393
aarno.toffer@toimitilapalvelu.com
Toimitilapalvelu FNTC LKV
Harry Juselius, KTM, LKV, KJs
Näytä puhelinnumero
+358-400-208419
harry.juselius@toimitilapalvelu.com
Pentti Kaartinen, Ekonomi
Näytä puhelinnumero
+358-50-337 8148
pentti.kaartinen@toimitilapalvelu.com
Aarno Toffer, Merkonomi
Näytä puhelinnumero
+358-44 978 1393
aarno.toffer@toimitilapalvelu.com
