Vuokrataan varastotilat, autotalli/-hallitilat - Espoo
Finnoonniitty 7, Suomenoja, 02270 Espoo #10825184
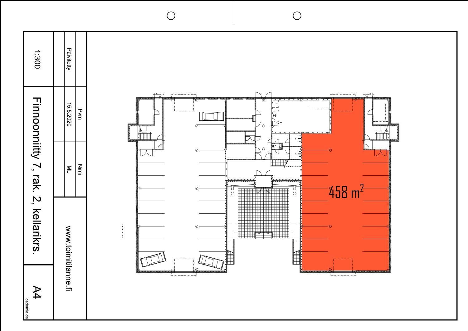
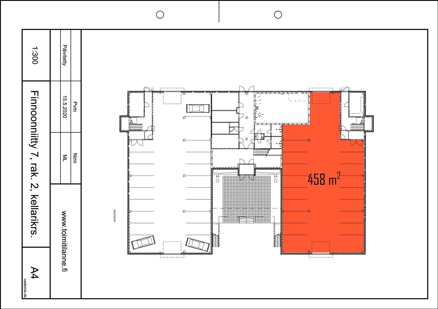
Vuokrataan Espoon Suomenojalta katutasosta 278 m² tila läpiajettavasta autotallista, joka soveltuu myös varastotilaksi. Tila vapautuu 1.4.2026. Autohalli on jaettu useammalle käyttäjälle.
Tilan molemmissa päissä nosto-ovet kooltaan (LxK) n. 3,6 m x 2,4 m. Kohde ei sovellu autopesulaksi, koska tilassa ei ole lattiakaivoa.
Kysy rohkeasti lisätietoja ja sovitaan käynti kohteella jo tänään!
Osoite
Finnoonniitty 7, 02270 Espoo
Tilatyyppi
Varastotilaa
278 m2
Autotalli/-hallitilaa
278 m2
Yhteensä
278 m2
Kiinteistö
Finnoonniitty 7
Vapautuu
Kysy
Rakennusvuosi
1990
Ota yhteyttä
Hausala Oy
Erkkilänkatu 11, 33100 Tampere
Näytä puhelinnumero
050 472 7077
Mikko Ranta
Näytä puhelinnumero
050 360 6500
Mika Savikko
Näytä puhelinnumero
050 472 7077
Pyydä lisätietoa
